Выполнили согласование самовольной перепланировки квартиры по ул. Якубовского д. 15 к. 1 г. Минск
Сегодня: 0, за все время: 154
г. Минск
Фрунзенский
9
М-464
Кунцевщина
4 минут пешком
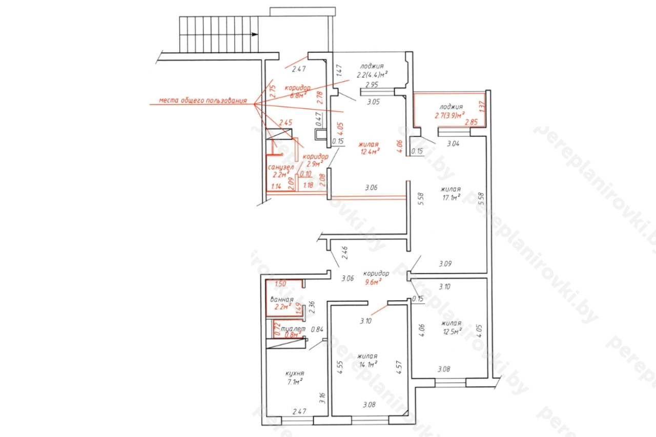
Выполненное согласование самовольной перепланировки квартиры по улице Якубовского д. 15 к. 1 представляет собой следующие решения:
- Выполнили конструкторские расчёты на усиление существующего проёма между жилой сущ. квартиры и жилой объединяемой колясочной.
- Выполнили строй работы по усилению рамой опорной металлической РОМ1 существующего проёма между жилой сущ. квартиры и жилой объединяемой колясочной.
- Убрали и вывезли строительный мусор на полигон "Тростенец" с предоставлением Заказчику Договора (нужен в исполком).
- Заказали обмерочную Ведомость в МГАпоГРиЗК.
- Согласовали Ведомость МГАпоГРиЗК у Главного инженера ЖЭУ Фрунзенского района г. Минска.
- Изготовили Техническое Заключение о состоянии несущих конструкций.
- Привлекли собственника квартиры к административной ответственности в виде штрафа в ЖЭУ Фрунзенского района г. Минска.
- Оплатили штраф в 0,5 Б.В.
- Составили и согласовали акт выполненных работ по самовольной перепланировке у Главного инженера ЖЭУ Фрунзенского района г. Минска.
- Подали "пакет" документов в службу Одно Окно Администрации Фрунзенского района г. Минска на вынесение решения о "регистрации самовольной реконструкции".
- Получили положительную Выписку из Решения администрации Фрунзенского района г. Минска.
- Зарегистрировали Выписку из Решения исполкома в МГАпоГРиЗК и заказали новые правоустанавливающие документы.
- Получили в МГАпоГРиЗК новый Тех. паспорт на квартиру + Новое свидетельство о гос. Регистрации.
- Передали на офисе готовые все готовые документы Заказчику.
Информация
Год постройки
1981
Серия
М-464
Тип дома
панельный
Планировка
стандартный проект
Район
Фрунзенский район
Микрорайон
Запад
Этажность
9
Метро
Кунцевщина
№ дома
15/1
Улица
ул. Якубовского
Город
г. Минск
Координаты
53.902936, 27.455758
Похожие проекты




