Выполнили согласование самовольной перепланировки квартиры по ул. Куйбышева д. 55 г. Минск
Сегодня: 0, за все время: 149
г. Минск
Советский
9
индвидуальный
Площадь Победы
12 минут пешком
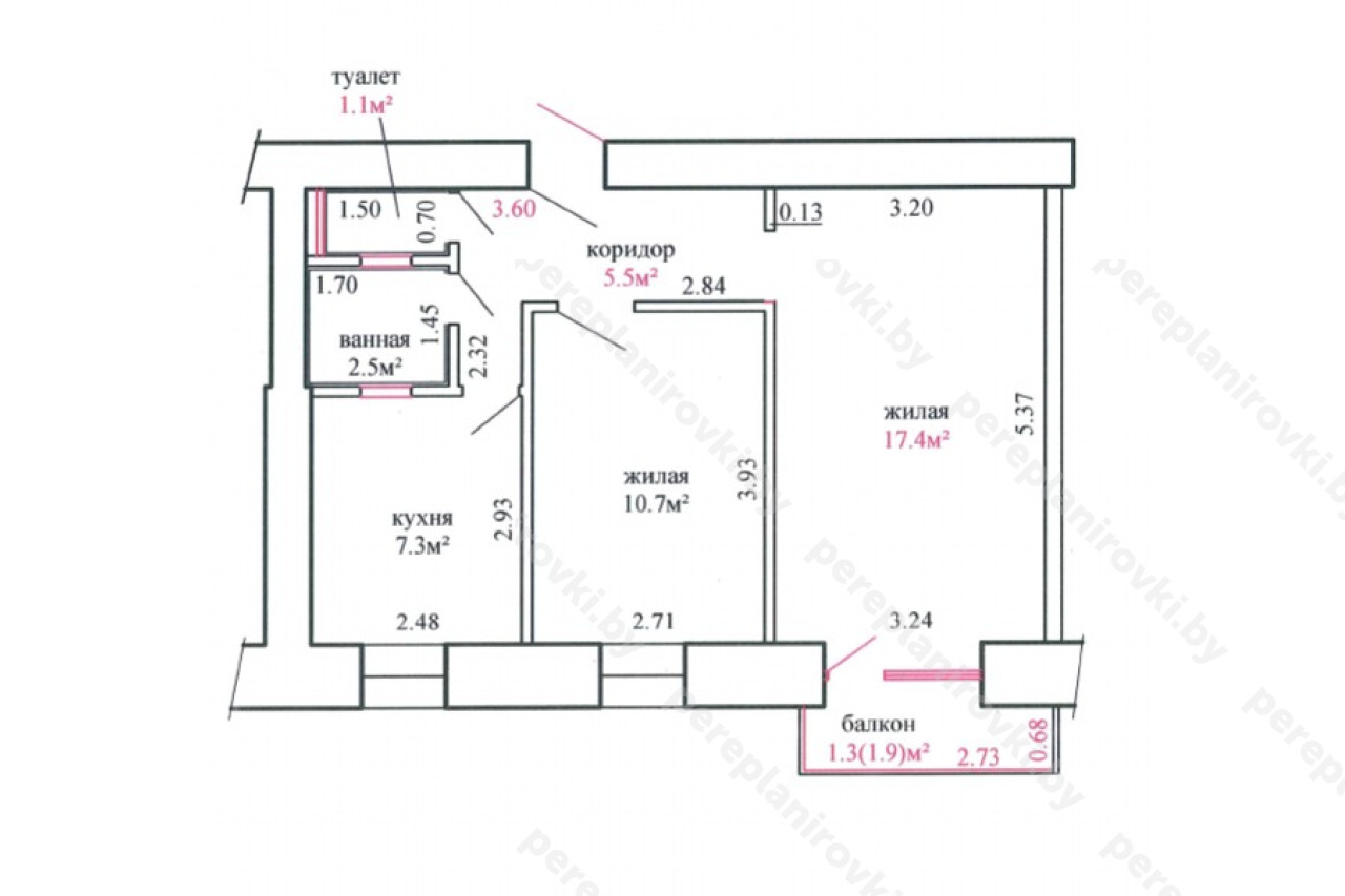
Согласование самовольной перепланировки квартиры по улице Куйбышева д. 55 в Минске представляет собой следующие решения:
- Заказали обмерочную Ведомость в МГАпоГРиЗК.
- Согласовали Ведомость МГАпоГРиЗК у Главного Инженера ЖЭУ Советского района г. Минска.
- Изготовили Техническое Заключение о состоянии несущих конструкций.
- Привлекли собственника квартиры к административной ответственности в виде штрафа в ЖЭУ Советского района г. Минска.
- Оплатили штраф в 0,5 Б.В.
- Составили и согласовали акт выполненных работ по самовольной перепланировке у Главного Инженера ЖЭУ Советского района г. Минска.
- Подали "пакет" документов в службу Одно Окно Администрации Советского района г. Минска на вынесение решения о "регистрации самовольной перепланировки".
- Получили положительную выписку из решения администрации Советского района.
- Зарегистрировали Выписку из Решения исполкома в МГАпоГРиЗК и заказали новые правоустанавливающие документы.
- Получили в МГАпоГРиЗК новый Тех. паспорт на квартиру + Новое свидетельство о гос. Регистрации.
- Передали на офисе готовые все готовые документы Заказчику.
Информация
Год постройки
1968
Серия
индвидуальный
Тип дома
кирпичный
Планировка
брежневка
Район
Советский район
Микрорайон
Богдановича
Этажность
9
Метро
Площадь Победы
№ дома
55
Улица
ул. Куйбышева
Город
г. Минск
Координаты
53.917511, 27.571901
Похожие проекты
Выполнить аналогичное узаконивание самовольной перепланировки, а также технический надзор можем и Вам. Достаточно оставить заявку "Заказать звонок" либо позвонить нам по телефонам +375 (29) 311-86-94 и +375 (33) 311-86-94
Адекватные цены, сертифицированные и опытные специалисты помогут выбрать Вам оптимальное решение.


