Выполнили перепланировку квартиры по ул. Славинского д. 3 д. Минск
Сегодня: 0, за все время: 121
г. Минск
Первомайский
5
1-464А
Восток
15 минут пешком
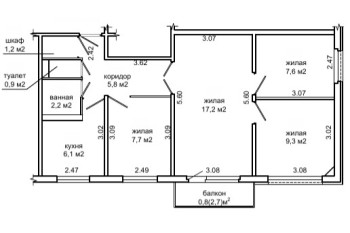
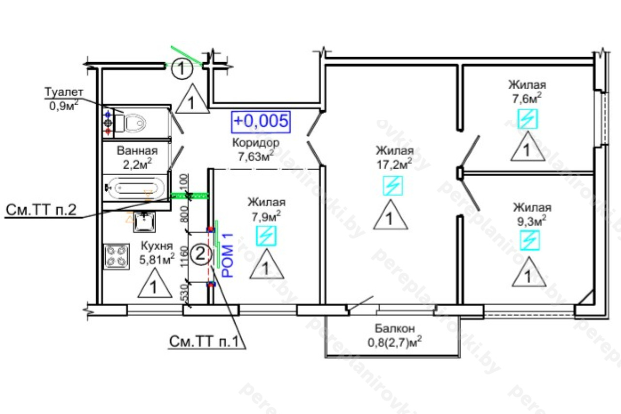
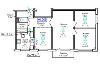
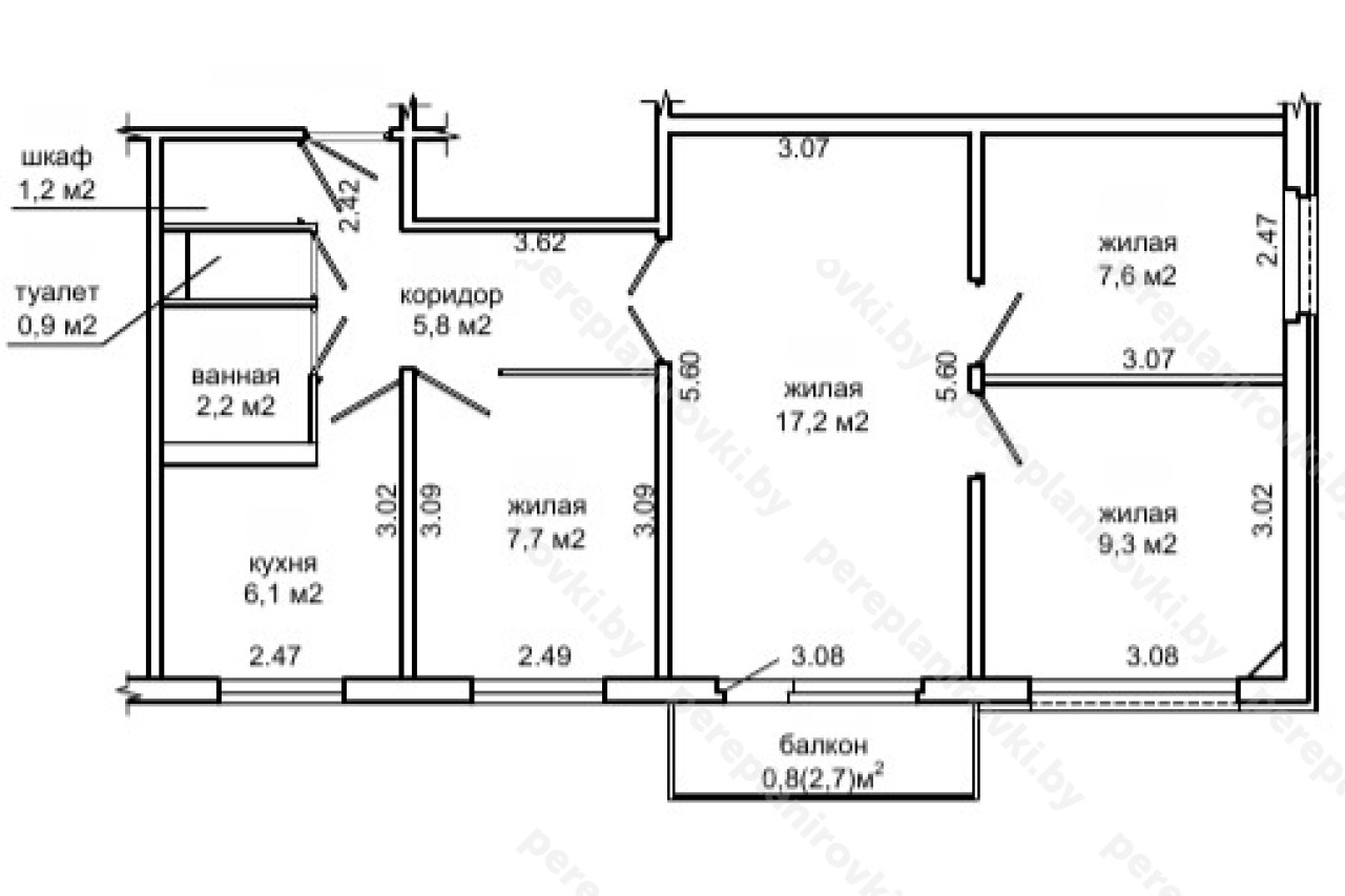
Выполнили перепланировку квартиры по улице Славинского д. 3 г. Минск представляет собой следующие решения:
- Получили Разрешение на перепланировку (переустройство) в Администрации Первомайского района г. Минска.
- Выполнили строительный проект на перепланировку. Разделы: АС,КМ, ОПЗ, ТЗ.
- Согласовали проект в исполкоме Первомайского района, Главным инженером ЖЭУ, УП "Мингаз".
- Защитили проект в ГП «Госстройэкспертиза по г. Минску» без единого замечания и получили Положительное Заключение по проекту.
- Выполнили стройработы:
- Устройство проёма шириной 1200 мм между жилой комнатой и кухней в несущей стене с усилением металлической рамой опорной РОМ1.
- Демонтаж не несущей перегородки между жилой комнатой и коридором. Уборка, вывоз мусора на полигон "Тростенецкий".
- Осуществили технический надзор за производством работ. Составили акты на скрытые работы.
- Заказали обмерочную Ведомость БТИ. Согласовали данный документ в ЖЭУ.
- Составили акты на ввод в эксплуатацию. Согласовали акты с комиссией, куда входят все заинтересованные лица.
- Подали весь «пакет документов» в Службу Одно Окно для вынесения Решения исполкома Первомайского района «о регистрации актов ввода в БТИ…»
- Зарегистрировали в БТИ Решение исполкома на ввод, заказали правоустанавливающие документы, включающие :
- - Новый технический паспорт;
- - Новое свидетельство о государственной регистрации БТИ.
Информация
Год постройки
1968
Серия
1-464А
Тип дома
панельный
Планировка
брежневка
Район
Первомайский район
Микрорайон
Восток
Этажность
5
Метро
Восток
№ дома
3
Улица
ул. Славинского
Город
г. Минск
Координаты
53.941479, 27.634020
Похожие проекты
Выполнить аналогичное усиление проёма в несущей стене , а также объединение квартиры можем и Вам. Достаточно оставить заявку "Заказать звонок" либо позвонить нам по телефонам +375 (29) 311-86-94 и +375 (33) 311-86-94
Адекватные цены, сертифицированные и опытные специалисты помогут выбрать Вам оптимальное решение.






