Выполнили перепланировку квартиры по ул. Фогеля д. 1E г. Минск
Сегодня: 0, за все время: 139
г. Минск
Первомайский
19
M-111-90
Выполнили перепланировку квартиры по улице Фогеля д. 1E в Минске представляет собой следующие решения:
- Получили Разрешение на перепланировку (переустройство) в Администрации Первомайского района г. Минска.
- Выполнили строительный проект на перепланировку. Разделы: АС,КМ, ОПЗ, ТЗ.
- Согласовали проект в исполкоме Первомайского района, Главным инженером ЖЭУ.
- Защитили проект в ГП «Госстройэкспертиза по г. Минску» без единого замечания и получили Положительное Заключение по проекту.
- Выполнили стройработы:
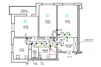
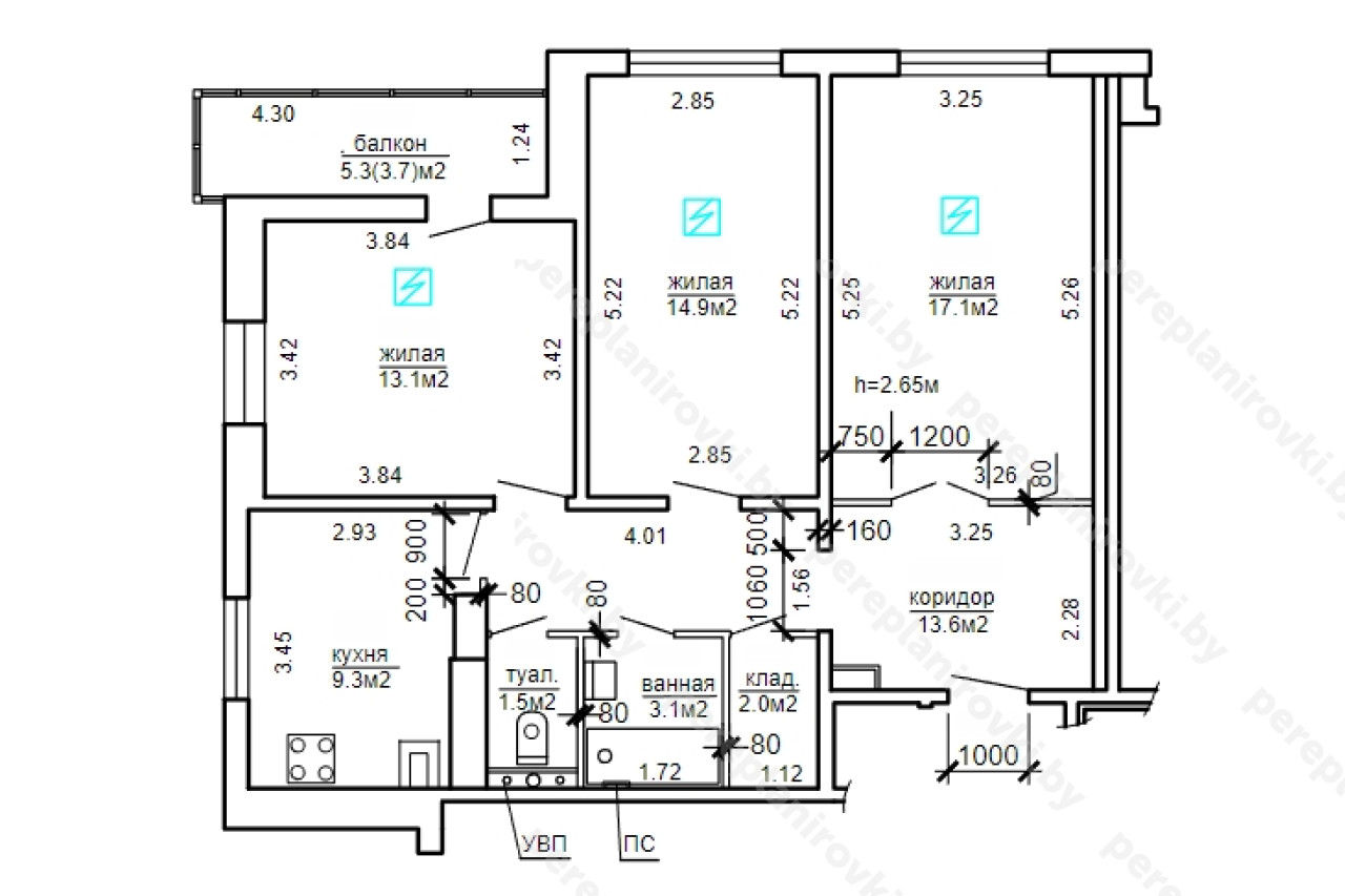
- Расширение существующего проёма в коридоре в несущей стене с усилением металлической рамой опорной РОМ 1.
- Увеличение площади туалета и ванной за счёт присоединения части площади коридора, а также площади кладовой путём демонтажа не несущих перегородок и возведения новых перегородок.
- Устройство гидроизоляции пола во вновь образованных туалете и ванной.
- Осуществили технический надзор за производством работ. Составили акты на скрытые работы.
- Заказали обмерочную Ведомость БТИ. Согласовали данный документ в ЖЭУ.
- Составили акты на ввод в эксплуатацию. Согласовали акты с комиссией, куда входят все заинтересованные лица.
- Подали весь «пакет документов» в Службу Одно Окно для вынесения Решения исполкома Первомайского района «о регистрации актов ввода в БТИ…»
- Зарегистрировали в БТИ Решение исполкома на ввод, заказали правоустанавливающие документы, включающие :
- - Новый технический паспорт;
- - Новое свидетельство о государственной регистрации БТИ.
Информация
Год постройки
2015
Серия
М-111-90
Тип дома
панельный
Планировка
новостройка
Район
Первомайский район
Микрорайон
Гуртьева
Этажность
19
№ дома
1Е
Улица
ул. Фогеля
Город
г. Минск
Координаты
53.959485, 27.735098
Похожие проекты
Выполнить аналогичное усиление проёма в несущей стене , а также объединение квартиры можем и Вам. Достаточно оставить заявку "Заказать звонок" либо позвонить нам по телефонам +375 (29) 311-86-94 и +375 (33) 311-86-94
Адекватные цены, сертифицированные и опытные специалисты помогут выбрать Вам оптимальное решение.






