Выполнили перепланировку квартиры по ул. Курсанта Гвишиани д.9 г. Минск
Сегодня: 0, за все время: 168
г. Минск
9
M-111-90
Партизанская
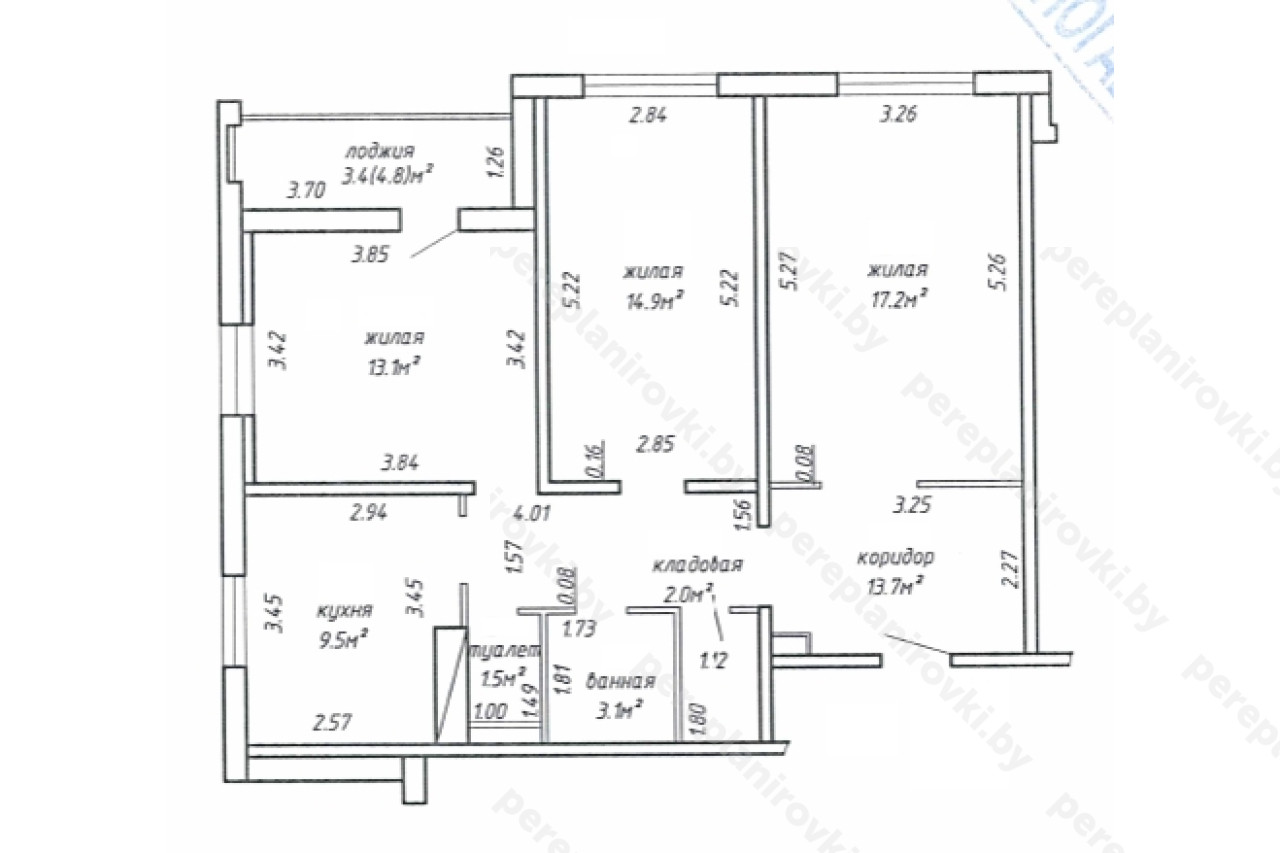
Выполнили перепланировки квартиры в несущей стене по ул. Курсанта Гвишиани д. 9 в Минске представляет собой следующие решения:
- Получили разрешение администрации Первомайского района на перепланировку.
- Разработали строительный проект на перепланировку квартиры с устройством проёмов в несущих стенах с усилением. Согласовали выполненный проект с ТС + исполком.
- Успешно защитили стройпроект в ГП «Госстройэкспертиза по г. Минску» Выполнили стройработы, включая устройство проёмов в несущих стенах с предварительным подведением опорных рам усиления, также электрику, сантехнику, отделку.
- Ввели квартиру в эксплуатацию после перепланировки. Получили на имя собственника новые правоустанавливающие документы, включая новый технический паспорт + свидетельство о гос. регистрации.
Выполнили согласование самовольной перепланировки квартиры по ул. Курсанта Гвишиани д. 9 в Минске представляет собой следующие решения:
- К нам обратился заказчик квартиры со второго этажа здания, где его мастера ввели его в заблуждение, чтобы заработать деньки и вырезали 2 огромных проёма в несущей стеновой панели. В связи с этими событиями вы по заданию Заказчика выполнили:
- Сделали конструкторский расчёт по усилению существующих проёмов в несущих стенах между кухней и комнатой, коридором и комнатой. Обследовали верхний и нижний этажи на предмет отсутствия вновь устроенных проёмов в несущих стенах.
- Произвели монтаж рам опорных металлических - РОМ1 и РОМ2 между кухней и комнатой, а также между коридором и комнатой, применяя в качестве ригеля швеллера, а для стоек также швеллера (большая нагрузка). Наши работы констролировались представителями инженерами застройщика дома, были выставлены домкраты для безопасности.
- Заказали обмерочную Ведомость технических характеристик БТИ. Согласовали Ведомость с Зам. Начальника управления Архитектуры и строительства Администрации Первомайского района г. Минска, а также с главным инженером ТС.
- Подготовили документы для привлечения собственника квартиры к административной ответственности в виде штрафа. Оплатили штраф 0,5 БВ.
- Выполнили проект (Техническое Заключение о состоянии несущих конструкций).
- Подали "пакет " документов в Службу Одно Окно Администрации Первомайского района на вынесение Решения "О регистрации самовольной перепланировки".
- Зарегистрировали Решение исполкома в БТИ и получили новые правоустанавливающие документы, включающие :
- - Новый Технический паспорт
- - Новое Свидетельство о государственной регистрации БТИ.
Информация
Год постройки
2017
Область
Минская область
Тип дома
панельный
Планировка
улучшенный проект
Район
Первомайский район
Микрорайон
Военный городок
Этажность
9
№ дома
9
Улица
ул. Гвишиани
Город
г. Минск
Координаты
53.951166, 27.716440
Похожие проекты
Выполнить аналогичное согласование перепланировки , а также технический надзор можем и Вам. Достаточно оставить заявку "Заказать звонок" либо позвонить нам по телефонам +375 (29) 311-86-94 и +375 (33) 311-86-94
Адекватные цены, сертифицированные и опытные специалисты помогут выбрать Вам оптимальное решение.
ТРАЙПЛ
ООО «ТРАЙПЛ» начало свою деятельность в 1992 году с оптовой торговли продуктов. на сегодняшний день это группа компаний, в которой работает свыше 3000 сотрудников. Приоритетным направлением деятельности является строительство жилых домов, офисов, а т... Подробнее...Год основания: 1992
Адрес: 220035, проспект Победителей, дом 51, корпус 2, помещение 15
Сайт: http://www.triple.by










