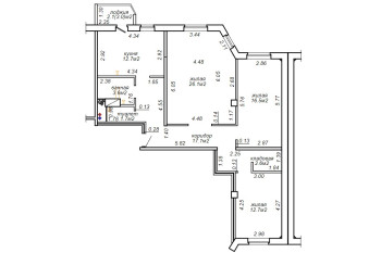
Выполнили перепланировку квартиры по ул. Ангарская д. 21 г. Минск
Сегодня: 0, за все время: 200
г. Минск
Заводской
14
М-464-М
Могилевская
8 минут пешком
Выполнили перепланировку квартиры по улице Ангарская д. 21 г. Минск представляет собой следующие решения:
- Получили Решение исполкома Заводского района г. Минска на перепланировку (переустройство) квартиры.
- Разработали проект перепланировки, включая разделы: АС, КМ, ТЗ, ОПЗ.
- Согласовали проект в Управлении архитектуры и строительства Администрации Заводского района г. Минска, ЖЭУ.
- Защитили проект в ГП «Госстройэкспертиза по г. Минску» в части рамы-обоймы РОМ1 шириной 2350 мм (15 этаж)!
- Выполнили строй работы по устройству проёма в несущей стене между кухней и жилой комнатой шириной 2350 мм с отделкой с усилением рамой опорной металлической РОМ1.
- Выполнили строй работы по гидроизоляции пола санузла (имеем Сертификат качества).
- Осуществили технический надзор за производством работ, составили акты на скрытые работы.
- Заказали Обмерочную Ведомость БТИ, согласовали её с ЖЭУ.
- Созвали комиссию на ввод квартиры в эксплуатацию после перепланировки + составили и согласовали с комиссией акты на ввод в эксплуатацию.
- Получили Решение исполкома Заводского района г. Минска на регистрацию актов ввода после перепланировки в БТИ.
- Зарегистрировали акты ввода + Решение исполкома в БТИ – получили новые правоустанавливающие документы
- Новый Технический паспорт.
- Новое свидетельство о государственной регистрации БТИ на имя собственника квартиры.
Информация
Год постройки
2023
Серия
М-464-М
Тип дома
панельный
Планировка
улучшенный проект
Район
Заводской район
Микрорайон
Ангарская
Этажность
14
Метро
Могилевская
№ дома
21
Улица
ул. Ангарская
Город
г. Минск
Координаты
53.867256, 27.679349
Планировка
Похожие проекты
Выполнить аналогичное узаконивание самовольной перепланировки, а также технический надзор можем и Вам. Достаточно оставить заявку "Заказать звонок" либо позвонить нам по телефонам +375 (29) 311-86-94 и +375 (33) 311-86-94
Адекватные цены, сертифицированные и опытные специалисты помогут выбрать Вам оптимальное решение.




















