Выполнили перепланировку квартиры по ул. Берута д. 4 к. 2 г. Минск
Сегодня: 0, за все время: 126
г. Минск
Фрунзенский
5
1-464А
Пушкинская
6 минут пешком
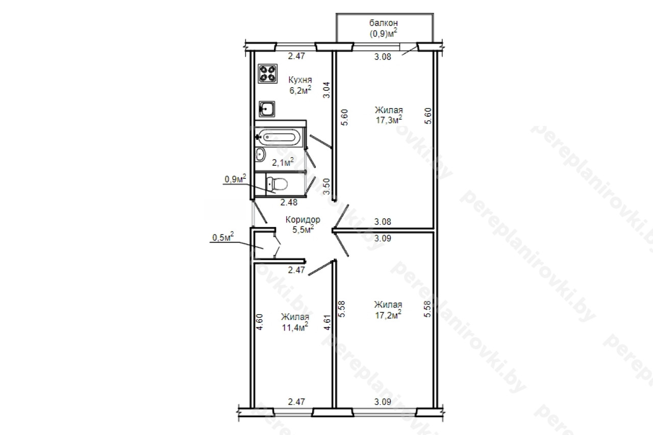
Выполнили перепланировку квартиры по улице Берута д. 4 к. 2 в Минске представляет собой следующие решения:
- Получили Решение исполкома Фрунзенского района г. Минска на перепланировку (переустройство) квартиры.
- Разработали проект перепланировки, включая разделы: АС, КМ, ТЗ, ОПЗ.
- Согласовали проект в Управлении архитектуры и строительства Администрации Фрунзенского района г. Минска, ЖЭУ.
- Защитили проект в ГП «Госстройэкспертиза по г. Минску» в части рамы-обоймы РОМ1 не громоздкого исполнения, практически вровень со стеной!
- Выполнили строй работы по устройству проёма в несущей стене между кухней и жилой комнатой шириной около 1800 мм с отделкой с усилением рамой опорной металлической РОМ1.
- Выполнили строй работы по гидроизоляции пола санузла (имеем Сертификат качества).
- Осуществили технический надзор за производством работ, составили акты на скрытые работы.
- Заказали Обмерочную Ведомость БТИ, согласовали её с ЖЭУ.
- Созвали комиссию на ввод квартиры в эксплуатацию после перепланировки + составили и согласовали с комиссией акты на ввод в эксплуатацию.
- Получили Решение исполкома Фрунзенского района г. Минска на регистрацию актов ввода после перепланировки в БТИ.
- Зарегистрировали акты ввода + Решение исполкома в БТИ – получили новые правоустанавливающие документы
- Новый Технический паспорт.
- Новое свидетельство о государственной регистрации БТИ на имя собственника квартиры.
Информация
Год постройки
1967
Серия
1-464А
Проект
1-464А-74
Тип дома
панельный
Планировка
брежневка
Район
Фрунзенский район
Микрорайон
Харьковская
Этажность
5
Метро
Пушкинская
№ дома
4/2
Улица
ул. Берута
Город
г. Минск
Координаты
53.907965, 27.499344
Похожие проекты
Выполнить аналогичное усиление проёма в несущей стене , а также объединение квартиры можем и Вам. Достаточно оставить заявку "Заказать звонок" либо позвонить нам по телефонам +375 (29) 311-86-94 и +375 (33) 311-86-94
Адекватные цены, сертифицированные и опытные специалисты помогут выбрать Вам оптимальное решение.








