Выполнили перепланировку квартиры по ул. Центральная д. 15 г. Пинск
Сегодня: 0, за все время: 203
г. Пинск
9
БР-464, -464А
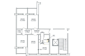
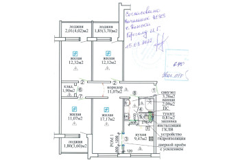
Выполненная перепланировка квартиры по улице Центральная д. 16 представляет собой следующие решения:
- Получили Разрешение на перепланировку (переустройство) в Администрации г. Пинска.
- Выполнили строительный проект на перепланировку. Разделы: АС,КМ, ОПЗ, ТЗ.
- Согласовали проект в исполкоме г. Пинска, Главным инженером ЖЭС, УП "Пинскгаз".
- Защитили проект в ГП «Госстройэкспертиза по Брестской области» без единого замечания и получили Положительное Заключение по проекту.
- Выполнили стройработы:
- Устройство проёма между жилой комнатой и кухней в несущей стене с усилением Рамой Опорной Металлической РОМ1, устройство гидроизоляции пола вновь образованного санузла.
- Осуществили технический надзор за производством работ. Составили акты на скрытые работы.
- Заказали обмерочную Ведомость БТИ. Согласовали данный документ в ЖЭС.
- Составили акты на ввод в эксплуатацию. Согласовали акты с комиссией, куда входят все заинтересованные лица.
- Подали весь «пакет документов» в Службу Одно Окно для вынесения Решения исполкома г. Пинска «о регистрации актов ввода в БТИ…»
- Зарегистрировали в БТИ Решение исполкома на ввод, заказали правоустанавливающие документы, включающие :
- - Новый технический паспорт;
- - Новое свидетельство о государственной регистрации БТИ.
Информация
Год постройки
1977
Серия
БР-464, -464А
Область
Брестсткая обл.
Тип дома
панельный
Планировка
стандартный проект
Этажность
9
№ дома
15
Улица
ул. Центральная
Город
г. Пинск
Координаты
52.135713, 26.102653
Похожие проекты





