Выполнили перепланировку квартиры по ул. Навуковая д. 10 г. Минск
Сегодня: 0, за все время: 218
г. Минск
Первомайский
5
M-111-90
Борисовский тракт
14 минут пешком
Выполнили перепланировку квартиры по улице Навуковая д. 10 представляет собой следующие решения:
- Получили Разрешение на перепланировку (переустройство) в Администрации Первомайского района г. Минска.
- Выполнили строительный проект на перепланировку. Разделы: АС,КМ, ОПЗ, ТЗ.
- Согласовали проект в исполкоме Первомайского района, Главным инженером ЖЭУ.
- Защитили проект в ГП «Госстройэкспертиза по г. Минску» без единого замечания и получили Положительное Заключение по проекту.
- Выполнили стройработы:
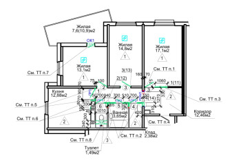
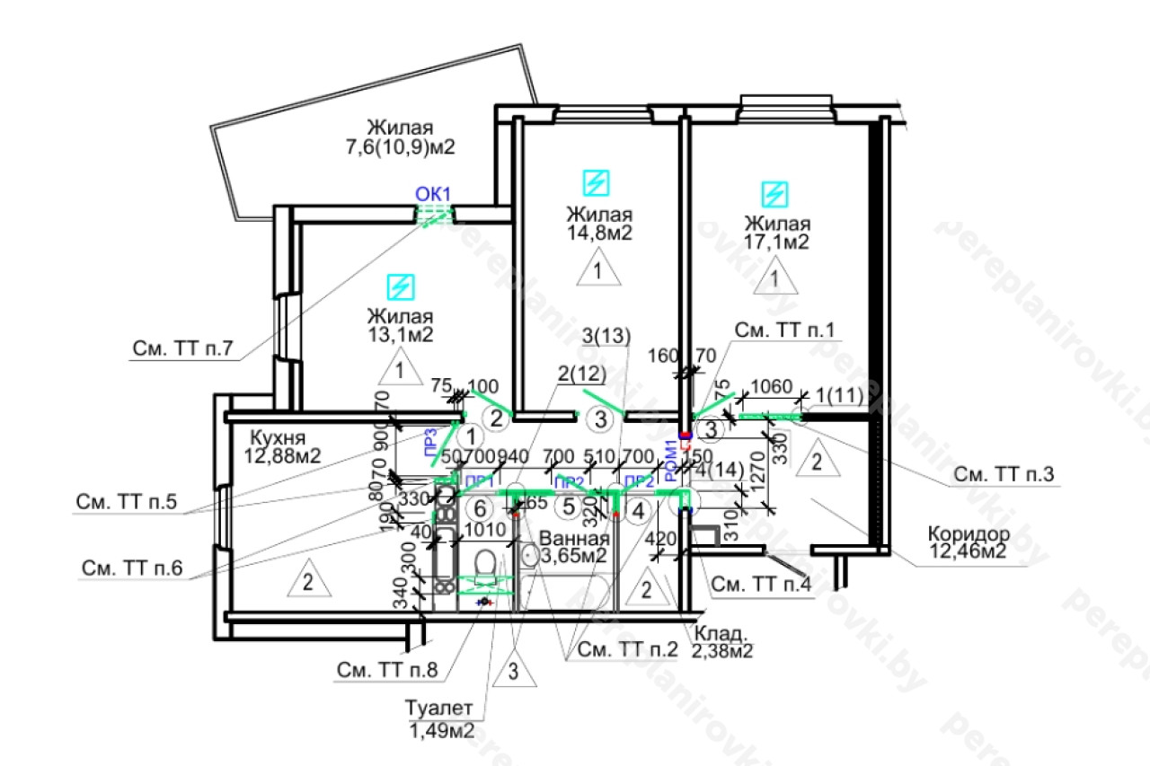
- Расширение проёма до размера 1270 мм в пределах площади коридора в несущей стене с усилением металлической рамой опорной РОМ1 под перекрытие.
- Строй работы по демонтажу не несущих перегородок между кладовой и коридором.
- Выполнили гидроизоляцию пола с напуском на стены 300 мм во вновь образованном санузле. (предоставили Сертификаты Качества).
- Осуществили технический надзор как ИП Шусталик Р.А. за производством работ. Составили акты на скрытые работы.
- Заказали обмерочную Ведомость в РУП «Минское городское агентство по государственной регистрации и земельному кадастру» . Согласовали данный документ в ТС.
- Составили акты на ввод в эксплуатацию. Согласовали акты с комиссией, куда входят все заинтересованные лица.
- Подали весь «пакет документов» в Службу Одно Окно для вынесения Решения исполкома Первомайского района «о регистрации актов ввода в РУП «Минское городское агентство по государственной регистрации и земельному кадастру».
- Зарегистрировали в БРТИ Решение исполкома на ввод, заказали правоустанавливающие документы, включающие:
- - Новый технический паспорт;
- - Новое свидетельство о государственной регистрации БРТИ.
Информация
Год постройки
2025
Серия
М-111-90
Тип дома
панельный
Планировка
новостройка
Район
Первомайский район
Микрорайон
Магистр
Этажность
19
№ дома
10
Улица
ул. Навуковая
Город
г. Минск
Координаты
53.930756, 27.669629
Похожие проекты
Выполнить аналогичное усиление проёма в несущей стене , а также объединение квартиры можем и Вам. Достаточно оставить заявку "Заказать звонок" либо позвонить нам по телефонам +375 (29) 311-86-94 и +375 (33) 311-86-94
Адекватные цены, сертифицированные и опытные специалисты помогут выбрать Вам оптимальное решение.
МАПИД
Открытое акционерное общество «МАПИД» является ведущим предприятием строительной отрасли г. Минска и Республики Беларусь. На рынке строительства жилья предприятие успешно работает с 1961 года. За эти годы построено и введено в эксплуатацию более 25 м... Подробнее...Год основания: 1961
Адрес: 220036, г. Минск, ул.Р.Люксембург, 205
Телефоны: +375 (17) 209-87-00
Сайт: www.mapid.by
Почта: mail@mapid.by















