Выполнили перепланировку квартиры по ул. Нестерова д. 86 к. 1 д. Минск
Сегодня: 0, за все время: 189
г. Минск
Заводской
9
М-335БК
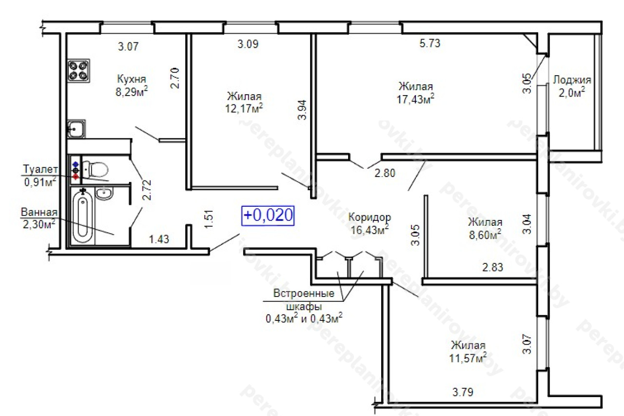
Выполнили перепланировку квартиры по улице Нестерова д. 86 к. 1 г. Минск представляет собой следующие решения:
- Получили Решение исполкома Заводского района г. Минска на перепланировку (переустройство) квартиры.
- Разработали проект перепланировки, включая разделы: АС, КМ, ТЗ, ОПЗ.
- Согласовали проект в Управлении архитектуры и строительства Администрации Заводского района г. Минска, ЖЭУ.
- Защитили проект в ГП «Госстройэкспертиза по г. Минску» в части рамы-обоймы РОМ1 не громоздкого исполнения, практически вровень со стеной!
- Выполнили строй работы по устройству проёма в несущей стене между кухней и жилой комнатой шириной 1000 мм с отделкой с усилением рамой опорной металлической РОМ1.
- Выполнили строй работы по гидроизоляции пола санузла (имеем Сертификат качества), также алмазную резку, демонтаж части не несущей перегородки между жилой комнатой и коридором.
- Осуществили технический надзор за производством работ, составили акты на скрытые работы.
- Заказали Обмерочную Ведомость БТИ, согласовали её с ЖЭУ.
- Созвали комиссию на ввод квартиры в эксплуатацию после перепланировки + составили и согласовали с комиссией акты на ввод в эксплуатацию.
- Получили Решение исполкома Заводского района г. Минска на регистрацию актов ввода после перепланировки в БТИ.
- Зарегистрировали акты ввода + Решение исполкома в БТИ – получили новые правоустанавливающие документы
- Новый Технический паспорт.
- Новое свидетельство о государственной регистрации БТИ на имя собственника квартиры.
Информация
Год постройки
1986
Серия
М-335БК
Тип дома
панельный
Район
Заводской район
Микрорайон
Ангарская
Этажность
9
№ дома
86/1
Улица
ул. Нестерова
Город
г. Минск
Координаты
53.885002, 27.692239
Похожие проекты
Выполнить аналогичное усиление проёма в несущей стене , а также объединение квартиры можем и Вам. Достаточно оставить заявку "Заказать звонок" либо позвонить нам по телефонам +375 (29) 311-86-94 и +375 (33) 311-86-94
Адекватные цены, сертифицированные и опытные специалисты помогут выбрать Вам оптимальное решение.






