Выполнили перепланировку квартиры по ул. Ландера д. 40 г. Минск
Сегодня: 0, за все время: 110
г. Минск
Октябрьский
5
1-464А
Малиновка
13 минут пешком
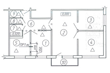
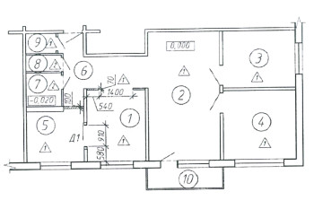
Перепланировка квартиры по улице Ландера д. 40 в Минске представляет собой следующие решения:
- Получили решение исполкома на перепланировку (переустройство).
- Разработали проект перепланировки, включая разделы: АС, КМ, ТЗ, ОПЗ.
- Согласовали проект в Управлении архитектуры и строительства Администрации Октябрьского района г. Минска, ЖЭУ.
- Выполнили строй работы по устройству проёма между кухней и комнатой с усилением металлом.
- Осуществили технический надзор за производством работ, составили акты на скрытые работы.
- Заказали Обмерочную Ведомость БТИ, согласовали её с ЖЭУ.
- Созвали комиссию на ввод квартиры в эксплуатацию после перепланировки + составили и согласовали с комиссией акты на ввод в эксплуатацию.
- Получили решение исполкома на регистрацию актов ввода после перепланировки в БТИ.
- Зарегистрировали акты ввода + Решение исполкома в БТИ – получили новые правоустанавливающие документы
- Новый Технический паспорт.
- Новое свидетельство о государственной регистрации БТИ на имя собственника квартиры.
Информация
Год постройки
1972
Серия
1-464А
Проект
1-464А-77
Тип дома
панельный
Планировка
брежневка
Район
Октябрьский район
Микрорайон
Курасовщина
Этажность
5
Метро
Малиновка
№ дома
40
Улица
ул. Ландера
Город
г. Минск
Координаты
53.841471, 27.491107
Похожие проекты







