Выполнили перепланировку квартиры по ул. Народная д. 45 г. Минск
Сегодня: 0, за все время: 112
г. Минск
Заводской
5
1-464
Партизанская
6 минут пешком
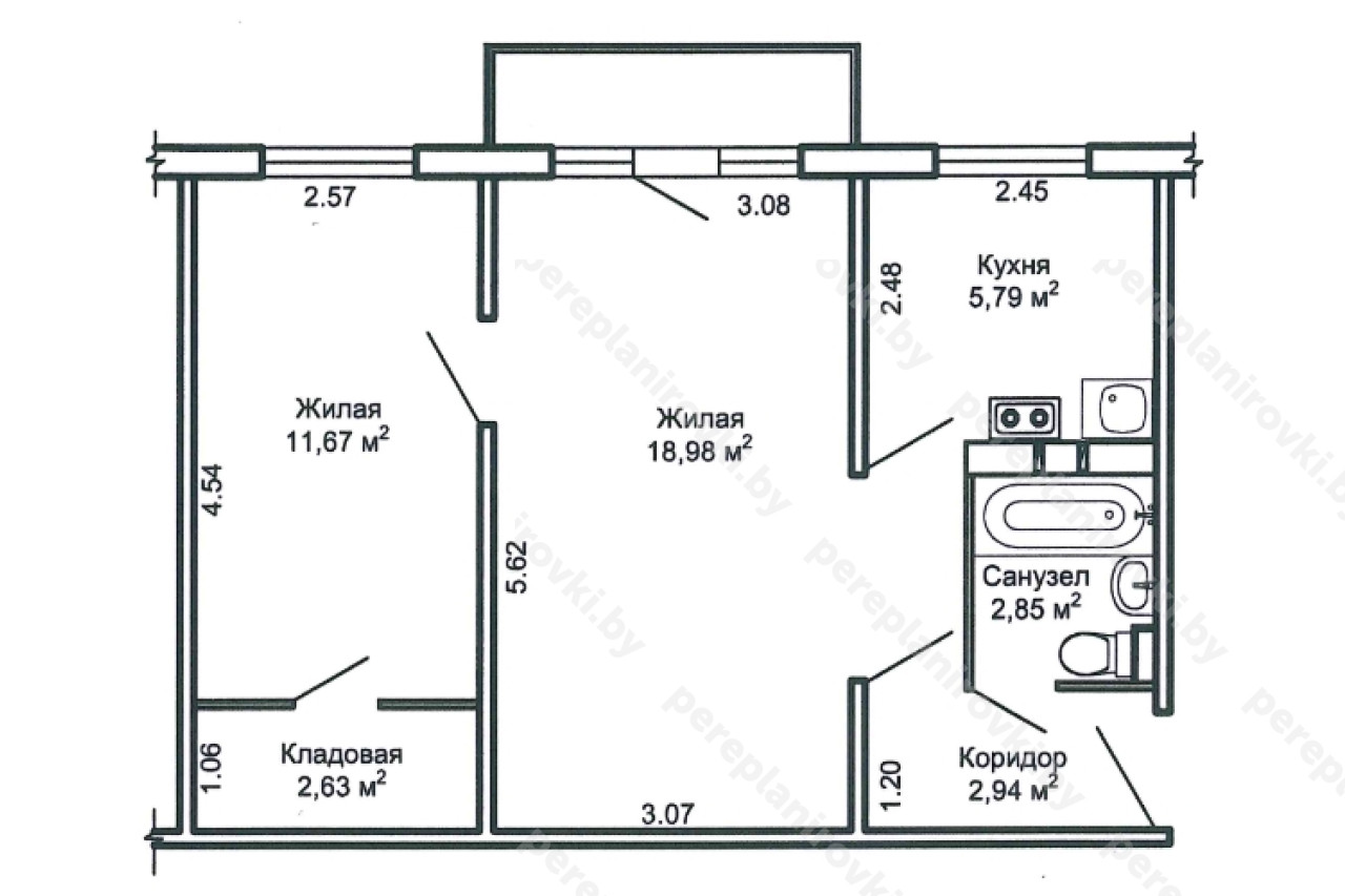
Перепланировка квартиры по улице Народная д. 45 в Минске представляет собой следующие решения:
- Получили решение исполкома на перепланировку (переустройство).
- Разработали проект перепланировки, включая разделы: АС, КМ, ТЗ, ОПЗ.
- Согласовали проект в Управлении архитектуры и строительства Администрации Заводского района г. Минска, ЖЭУ.
- Защитили проект в ГП «Госстройэкспертиза по г. Минску».
- Выполнили строй работы по устройству разъединение 2-х смежных комнат в две раздельные путём устройства проёмов шириной 900 мм в несущих стенах с усилением металлом.
- Осуществили технический надзор за производством работ, составили акты на скрытые работы.
- Заказали Обмерочную Ведомость БТИ, согласовали её с ЖЭУ.
- Созвали комиссию на ввод квартиры в эксплуатацию после перепланировки + составили и согласовали с комиссией акты на ввод в эксплуатацию.
- Получили решение исполкома на регистрацию актов ввода после перепланировки в БТИ.
- Зарегистрировали акты ввода + Решение исполкома в БТИ – получили новые правоустанавливающие документы
- Новый Технический паспорт.
- Новое свидетельство о государственной регистрации БТИ на имя собственника квартиры.
Информация
Год постройки
1962
Серия
1-464
Тип дома
панельный
Планировка
хрущевка
Район
Заводской район
Микрорайон
Народная
Этажность
5
Метро
Партизанская
№ дома
45
Улица
ул. Народная
Город
г. Минск
Координаты
53.872289, 27.631370
Похожие проекты
Выполнить аналогичное усиление проёма в несущей стене , а также объединение квартиры можем и Вам. Достаточно оставить заявку "Заказать звонок" либо позвонить нам по телефонам +375 (29) 311-86-94 и +375 (33) 311-86-94
Адекватные цены, сертифицированные и опытные специалисты помогут выбрать Вам оптимальное решение.







