Выполнили перепланировку квартиры по пр-т Газеты Звязда д.10 к.4 г. Минск
Сегодня: 0, за все время: 119
г. Минск
Московский
9
М-464
Петровщина
12 минут пешком
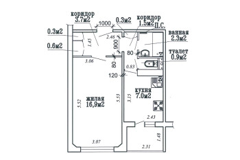
Выполнили усиление проёма в несущей стене по пр-т. Газеты Звязда д.10 к.4 в Минске представляет собой следующие решения:
- Получили решение исполкома на перепланировку (переустройство).
- Разработали проект перепланировки, включая разделы: АС, КМ, ТЗ, ОПЗ.
- Согласовали проект в Управлении архитектуры и строительства Администрации Московского района г. Минска, ЖЭУ.
- Успешно защитили строй проект без одного замечания в ГП "Госстройэкспертиза по г. Минску"
- Выполнили строй работы по устройству проёма между кухней и комнатой с усилением металлом.
- Осуществили технический надзор за производством работ, составили акты на скрытые работы.
- Заказали Обмерочную Ведомость БТИ, согласовали её с ЖЭУ.
- Созвали комиссию на ввод квартиры в эксплуатацию после перепланировки + составили и согласовали с комиссией акты на ввод в эксплуатацию.
- Получили решение исполкома на регистрацию актов ввода после перепланировки в БТИ.
- Зарегистрировали акты ввода + Решение исполкома в БТИ – получили новые правоустанавливающие документы
- Новый Технический паспорт.
- Новое свидетельство о государственной регистрации БТИ на имя собственника квартиры.
Информация
Год постройки
1984
Серия
М-464
Тип дома
панельный
Планировка
малосемейка
Район
Московский район
Микрорайон
Юго-Запад
Этажность
9
Метро
Петровщина
Координаты
53.868717, 27.469610
Похожие проекты
МАПИД
Открытое акционерное общество «МАПИД» является ведущим предприятием строительной отрасли г. Минска и Республики Беларусь. На рынке строительства жилья предприятие успешно работает с 1961 года. За эти годы построено и введено в эксплуатацию более 25 м... Подробнее...Год основания: 1961
Адрес: 220036, г. Минск, ул.Р.Люксембург, 205
Телефоны: +375 (17) 209-87-00
Сайт: www.mapid.by
Почта: mail@mapid.by





