Выполнили проект перепланировки квартиры по ул. Пташука д.11 г. Минск
Сегодня: 0, за все время: 194
10
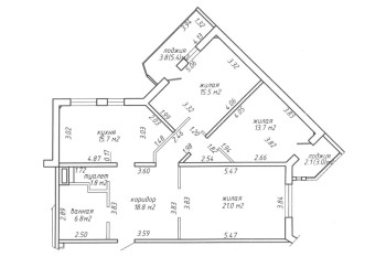
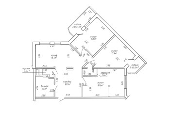
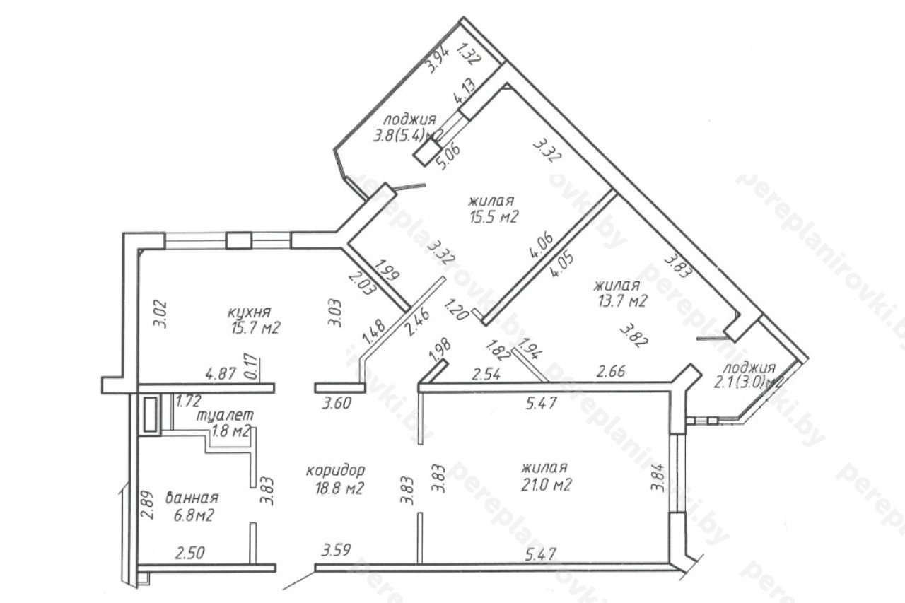
Переустройство и перепланировка помещений квартиры дома №11 по ул. Пташука в г Минске представляет собой следующие решения:
- Получили Разрешение исполкома Ленинского района на перепланировку.
- Разработали архитектурный проект. Разделы : АС - Архитектурно строительные решения, КМ - Конструкции металлические. Особенностью проекта являются не стандартные конструкторские решения по демонтажу 2-х несущих консолей над существующими проёмами с усилением металлоконмтрукциями.
- Защитили успешно без замечаний архитектурный проект в ГП "Госстройэкспертиза по г. Минску".
- Сварили 3 рамы опорных металлических РОМ. Учитывая, что одна рамы было около 3-х метров в ширину, вторая 1,5 м, и третья во вновь образованную кладовую 860 мм в ширину!
- Осуществили технический надзор на объекте. Составили акты на скрытые работы.
- Выполнили сантехнические, электромонтажные и отделочные работы.
- Заказали Обмерочную ведомость БТИ. Согласовали ведомость с ТС, Начальником Управления архитектуры и строительства администрации Ленинского района г. Минска.
- Подали "пакет" документов в Службу "Одно Окно" Администрации Ленинского района на вынешение решение " О регистрации перепланировки".
- Зарегистрировали решение исполкома в БТИ, внесли изменения в кадастр на имя собственника. Получили новые иправоустанавливающие документы: Новый технический паспорт БТИ, а также Свидетельство о государственной регистрации БТИ.
Информация
Год постройки
2017
Серия
М-464-М
Тип дома
панельный
Район
Ленинский район
Микрорайон
Лошица
Этажность
10
№ дома
11
Улица
ул. Михаила Пташука
Город
г. Минск
Координаты
53.836753, 27.594278
Похожие проекты










