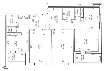
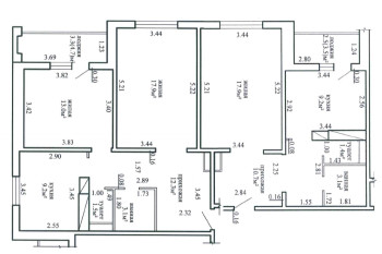
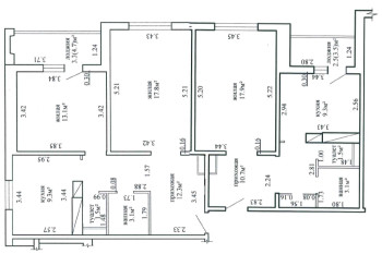
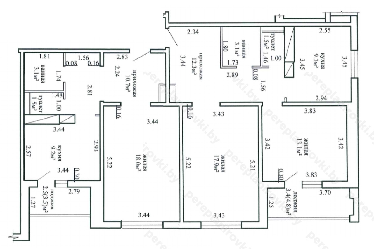
Выполнили объединение двух квартир по ул. Уборевича д. 98 г. Минск
Сегодня: 0, за все время: 450
г. Минск
Фрунзенский
19
М-464-У1М
Выполнили объединение квартир по ул. Уборевича д. 98 в Минске представляет собой следующие решения:
- Получили Разрешение Администрации Заводского района г. Минска на реконструкцию 2-х квартир с целью их объединения.
- Получили и согласовали в РЭС технические условия на электроснабжение двух квартир на 12 кВт с оставлением одной жилой комнаты.
- Разработали строй проект на реконструкцию (объединение двух квартир в одну). Разделы: АС, КМ (рама опорная металлическая между квартирами), ОВ, ВК, ПОС (проект организации строительства), ТЗ, ЭМ. (имеем аттестаты на проектирование 2-ой категории сложности, до 100 м. в высоту).
- Согласовали проект с Начальником управления архитектуры и строительства Администрации Заводского района г. Минска, Председателем ТС, Энергосбыт, Энергонадзор.
- Защитили проект в ГП "Госстройэкспертиза по г. Минску", получили положительное Заключение.
- Выполнили стройработы, включая:
- - Проём между квартирами в несущей стене с усилением металлом (приложили Аттестаты Соответствия).
- - гидроизоляция во вновь образованном санузле (приложили Сертификаты качества)
- Осуществили технический надзор на производством работ. (как ИП Шусталик Р.А.) Составили акты на скрытые работы на раму опорную металлическую + гидроизоляцию.
- Заказали Электрофизические измерения на новую электрику.
- Заключили новые договора в Энергосбыте и Энергонадзоре.
- Заказали Обмерочную Ведомость в МГАпоГРиЗК.
- Согласовали Обмерочную ведомость МГАпоГРиЗК у Председателя ТС.
- Составили и согласовали с комиссией акты на ввод объекта в эксплуатацию.
- Подали "Пакет " документов в Службу Одно Окно исполкома Заводского района г. Минска на Вынесение Решения о регистрации Реконструкции квартир в БРТИ.
- Зарегистрировали Решение исполкома в МГАпоГРиЗК и получили новые правоустанавливающие документы на одну квартиру с присвоением пониженного номера включая :
- - Новый Технический паспорт на квартиру
- - Новое Свидетельство о гос. регистрации МГАпоГРиЗК.
Информация
Год постройки
2025
Серия
М-111-90
Тип дома
панельный
Планировка
новостройка
Район
Заводской район
Микрорайон
Чижовка
Этажность
19
№ дома
98
Улица
ул. Уборевича
Город
г. Минск
Координаты
53.835515, 27.646488
Похожие проекты
Выполнить аналогичное объединение квартир , а также перевод жилого помещения в нежилое можем и Вам. Достаточно оставить заявку "Заказать звонок" либо позвонить нам по телефонам +375 (29) 311-86-94 и +375 (33) 311-86-94
Адекватные цены, сертифицированные и опытные специалисты помогут выбрать Вам оптимальное решение.




























