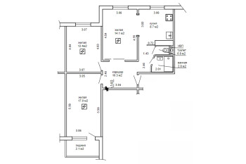
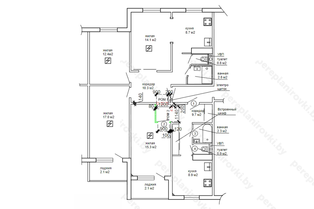
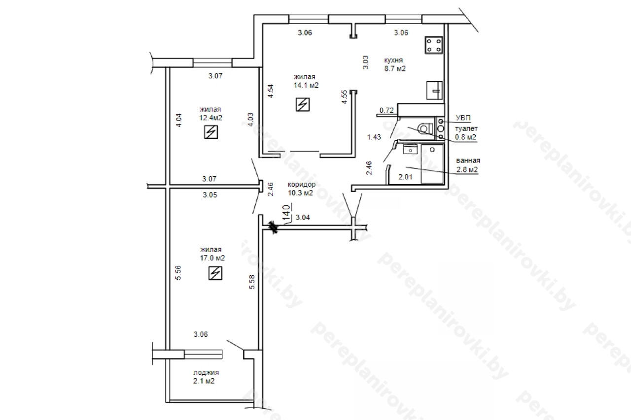
Выполнили объединение двух квартир по ул. Новгородская д. 9 г. Минск
Сегодня: 0, за все время: 122
г. Минск
Первомайский
9
М-464
Парк Челюскинцев
18 минут пешком
Выполнили реконструкцию квартиры по проспекту Новгородская д. 9 в Минске представляет собой следующие решения:
- Получили Разрешение Администрации Первомайского района г. Минска на реконструкцию квартиры.
- Получили и согласовали в РЭС технические условия на электроснабжение двух квартир.
- Разработали строй проект на реконструкцию (объединение двух квартир в одну). Разделы: АС, КМ (рама опорная металлическая между квартирами, расширение проёма с усилением в однокомнатной квартире), ОВ, ВК, Сметы на смр, ПОС (проект организации строительства), ЭМ.
- Согласовали проект с Начальником управления архитектуры и строительства Администрации Первомайского района г. Минска, Председателем ТС, Энергосбыт, Энергонадзор. Отметим, что удалось получить тех. условия на электрику с оставлением двух существующих электроплит!
- Защитили проект в ГП "Госстройэкспертиза по г. Минску", получили положительное Заключение.
- Выполнили стройработы, включая:
- - Проём между квартирами в несущей стене с усилением металлом и отделкой ГКЛ.
- - Расширение сущ. проёма в бывшей однокомнатной квартире для устройства коридора.
- - Электромонтажные работы.
- - Сантехнические работы а ванной и туалете.
- Осуществили технический надзор на производством работ. Составили акты на скрытые работы.
- Заказали Электрофизические измерения на новую электрику.
- Заключили новые договора в Энергосбыте и Энергонадзоре.
- Заказали Обмерочную Ведомость БТИ.
- Согласовали Обмерочную ведомость БТИ у Председателя ТС.
- Составили и согласовали с комиссией акты на ввод объекта в эксплуатацию.
- Подали "Пакет " документов в Службу Одно Окно исполкома Первомайского района г. Минска на Вынесение Решения о регистрации Реконструкции квартир в БТИ.
- Зарегистрировали Решение исполкома в БТИ и получили новые правоустанавливающие документы на одну квартиру с присвоением пониженного номера включая :
- - Новый Технический паспорт на квартиру
- - Новое Свидетельство о гос. регистрации БТИ.
Информация
Год постройки
2004
Серия
М-464
Тип дома
панельный
Планировка
улучшенный проект
Район
Первомайский район
Микрорайон
Волгоградская
Этажность
9
Метро
Парк Челюскинцев
№ дома
9
Улица
ул. Новгородская
Город
г. Минск
Координаты
53.939407, 27.609756
Похожие проекты
Выполнить аналогичное объединение квартир , а также перевод жилого помещения в нежилое можем и Вам. Достаточно оставить заявку "Заказать звонок" либо позвонить нам по телефонам +375 (29) 311-86-94 и +375 (33) 311-86-94
Адекватные цены, сертифицированные и опытные специалисты помогут выбрать Вам оптимальное решение.








