Выполнили объединение двух квартир по ул. Грушевская д. 13 г. Минск
Сегодня: 0, за все время: 154
г. Минск
Московский
19
индвидуальный
Грушевка
1 минут пешком
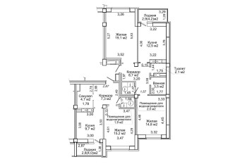
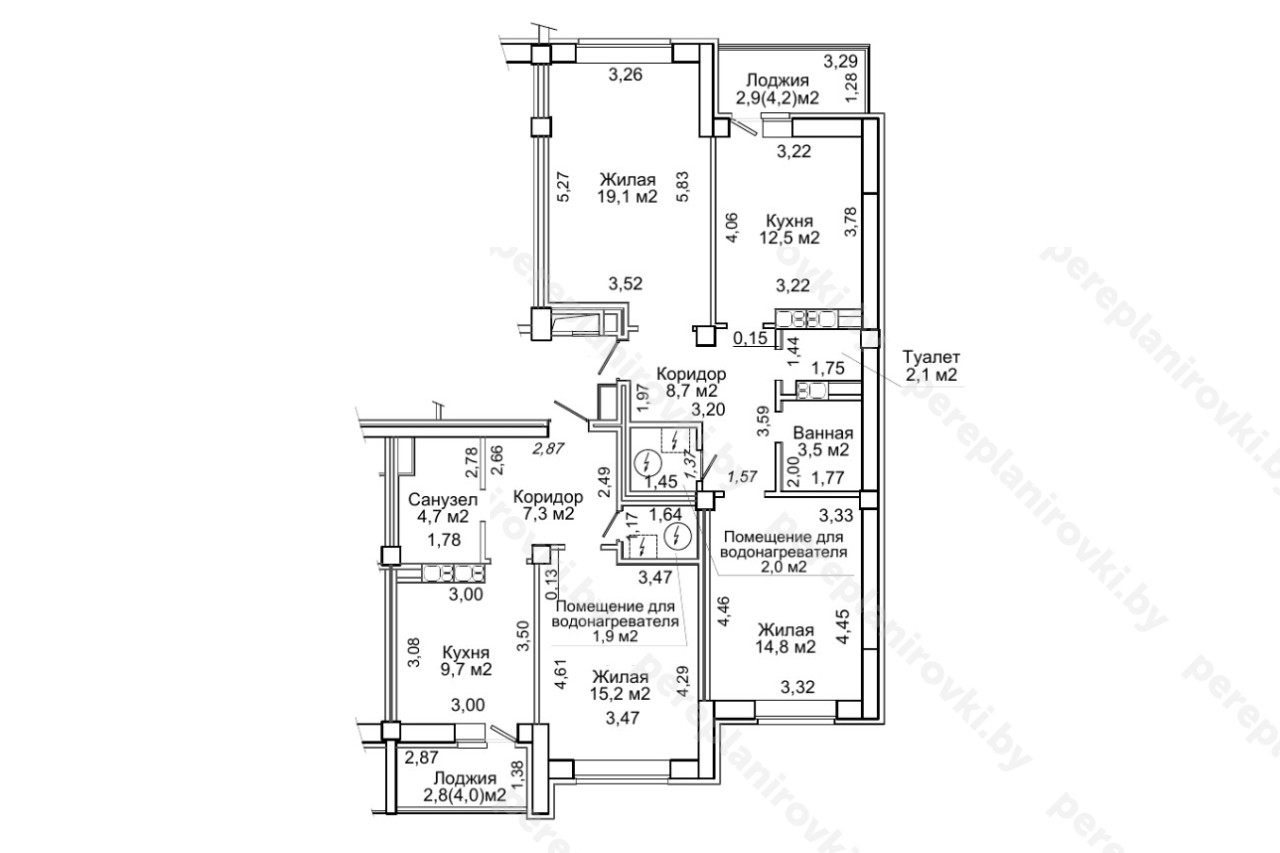
Реконструкцию (объединение) двух квартир под ключ по улице Грушевская д. 13 в Минске представляет собой следующие решения:
- Получили Разрешение Администрации Московского района г. Минска на реконструкцию 2-х квартир с целью их объединения.
- Получили и согласовали в РЭС технические условия на электроснабжение двух квартир на 36 кВт. (плита + электо подогрев).
- Разработали строй проект на реконструкцию (объединение двух квартир в одну). Разделы: АС, ОВ, ВК, ПОС (проект организации строительства), ТЗ, ЭМ. (имеем аттестаты на проектирование 2-ой категории сложности, до 100 м. в высоту).
- Согласовали проект с Начальником управления архитектуры и строительства Администрации Московского района г. Минска, Председателем ТС, Энергосбыт, Энергонадзор.
- Защитили проект в ГП "Госстройэкспертиза по г. Минску", получили положительное Заключение без единого замечания.
- Выполнили стройработы, включая:
- - гидроизоляция во вновь образованном санузле (приложили Сертификаты качества);
- - замена радиаторов отопления ( приложили Аттестаты Соответствия).
- Осуществили технический надзор на производством работ. (как ИП Шусталик Р.А.) Составили акты на скрытые работы на отопление + гидроизоляцию.
- Заказали Электрофизические измерения на новую электрику.
- Заключили новые договора в Энергосбыте и Энергонадзоре.
- Заказали Обмерочную Ведомость в РУП "МГАпоГРиЗК".
- Согласовали Обмерочную ведомость РУП "МГАпоГРиЗК" у Председателя ТС.
- Составили и согласовали с комиссией акты на ввод объекта в эксплуатацию.
- Подали "Пакет " документов в Службу Одно Окно исполкома Московского района г. Минска на Вынесение Решения о регистрации Реконструкции квартир в РУП "МГАпоГРиЗК".
- Зарегистрировали Решение исполкома в РУП "МГАпоГРиЗК" и получили новые правоустанавливающие документы на одну квартиру с присвоением пониженного номера включая :
- - Новый Технический паспорт на квартиру
- - Новое Свидетельство о гос. регистрации РУП "МГАпоГРиЗК".
Информация
Год постройки
2023
Серия
индвидуальный
Тип дома
монолитный
Планировка
новостройка
Похожие проекты
УКС Запад
Коммунальное унитарное дочернее предприятие «Управление капитального строительства Запад» Сокращенное наименование предприятия: Государственное предприятие «Управление капитального строительства Запад» Учредитель предприятия – коммунальное унитарно... Подробнее...Год основания: 2014
Адрес: г. Минск ул. С. Есенина, 4-107
Телефоны: +375 (44) 795 44 44
Сайт: https://ukszapad.by
Почта: adm@ukszapad.by



