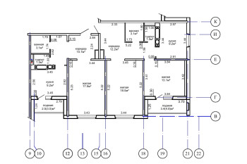
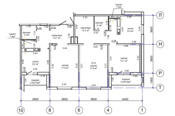
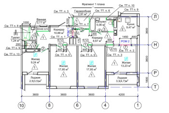
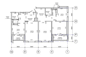
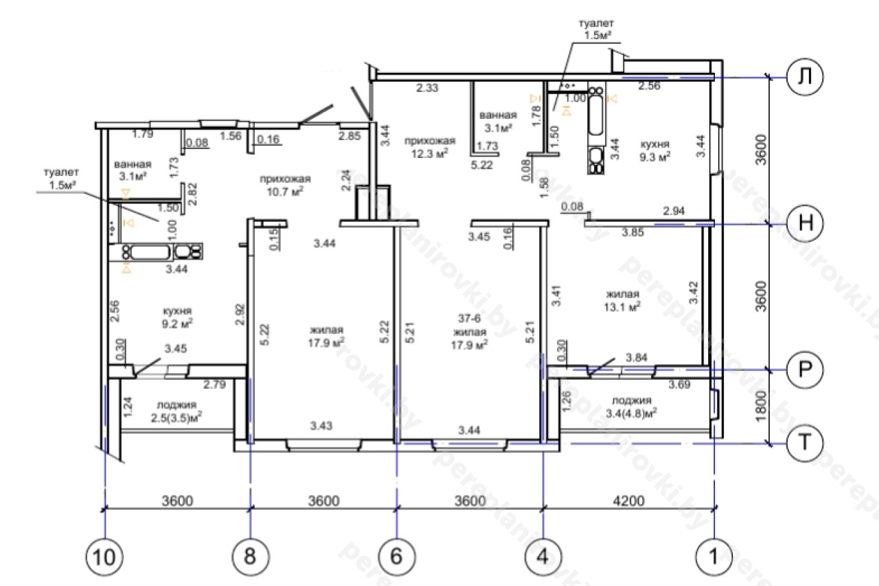
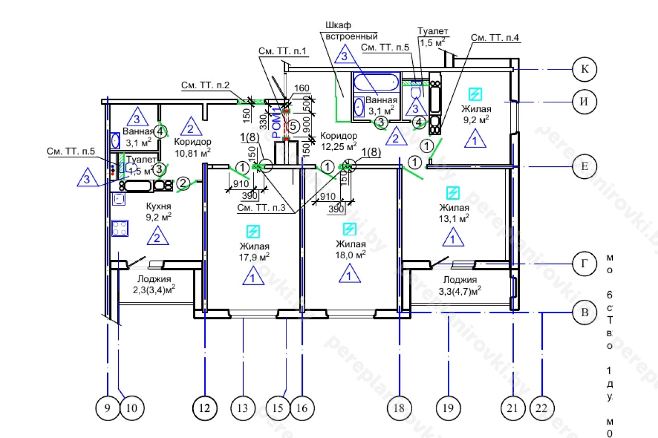
Выполнили объединение двух квартир по ул. Ангарская д. 17А г. Минск
Сегодня: 0, за все время: 222
г. Минск
Заводской
19
M-111-90
Могилевская
5 минут пешком
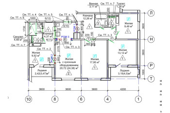
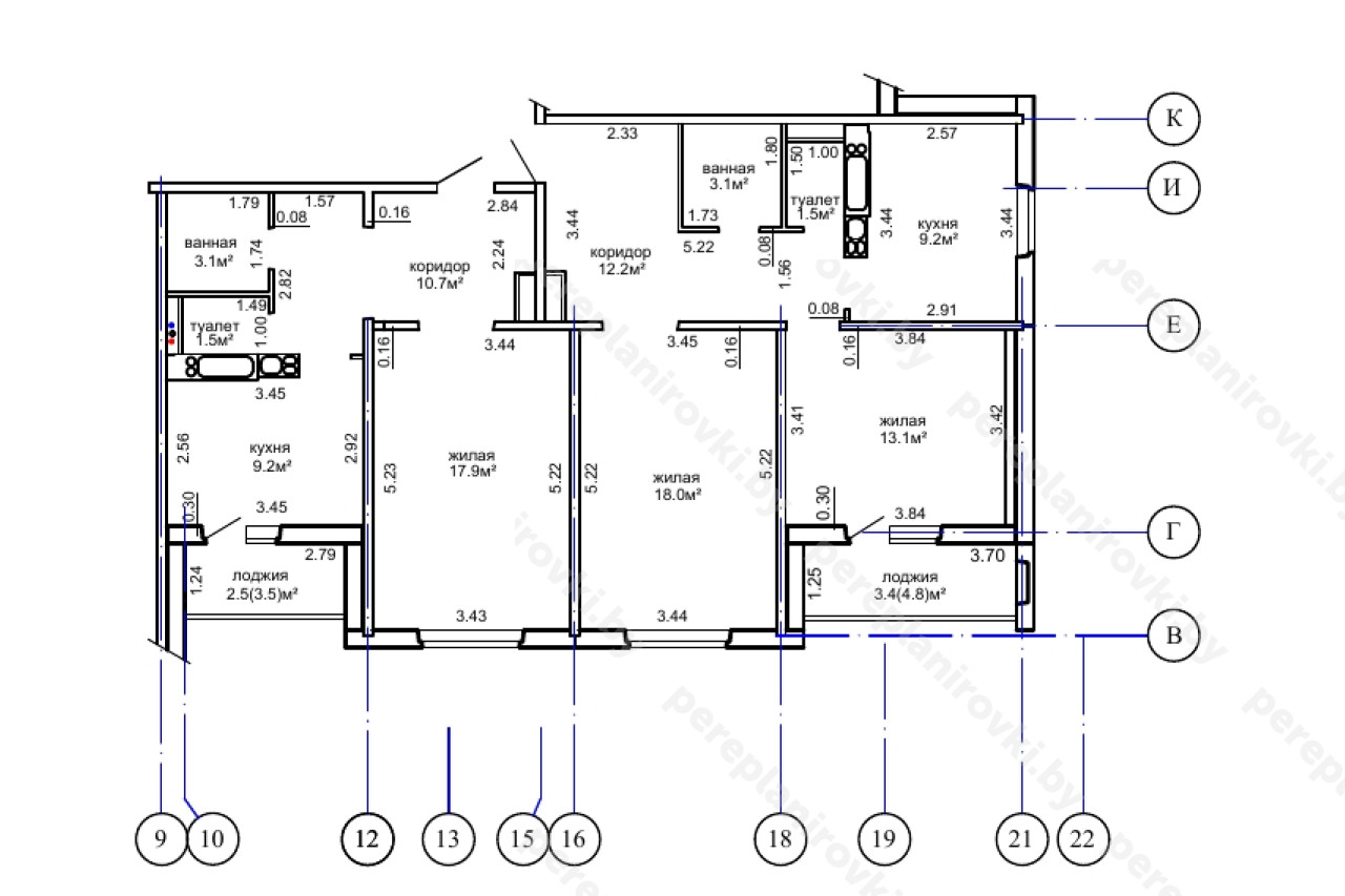
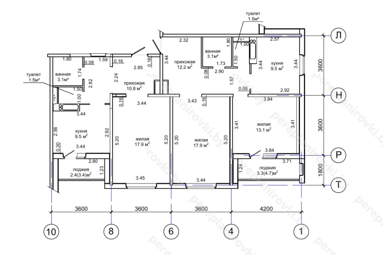
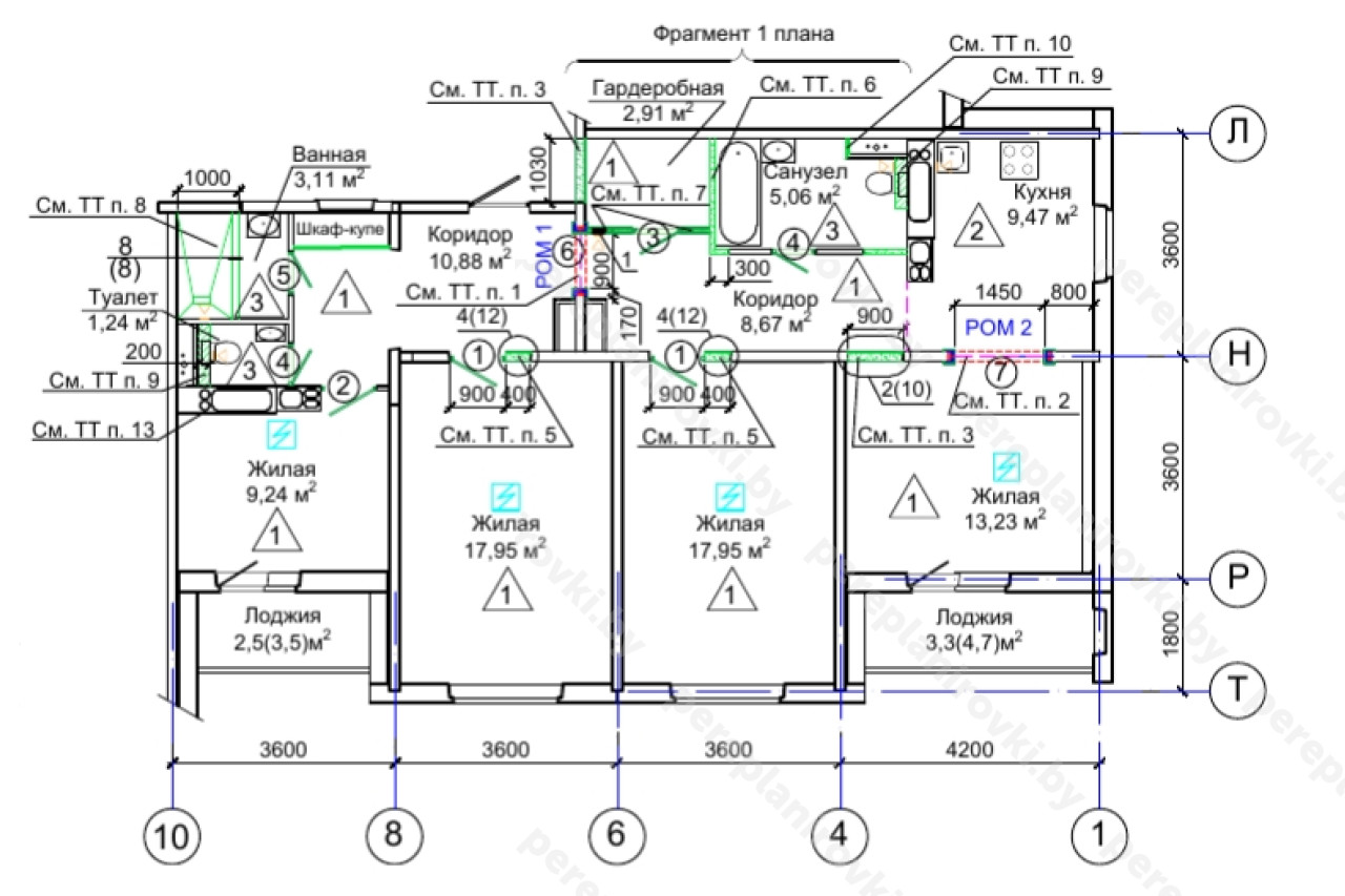
Выполнили объединение квартир по ул. Ангарская д. 17А в Минске представляет собой следующие решения:
- Получили Разрешение Администрации Заводского района г. Минска на реконструкцию 2-х квартир с целью их объединения.
- Получили и согласовали в РЭС технические условия на электроснабжение двух квартир.
- Разработали строй проект на реконструкцию (объединение двух квартир в одну). Разделы: АС, КМ (рама опорная металлическая между квартирами), ОВ, ВК, ПОС (проект организации строительства), ЭМ.
- Согласовали проект с Начальником управления архитектуры и строительства Администрации Заводского района г. Минска, Председателем ТС, Энергосбыт, Энергонадзор.
- Защитили проект в ГП "Госстройэкспертиза по г. Минску", получили положительное Заключение.
- Выполнили стройработы, включая:
- - Проём между квартирами в несущей стене с усилением металлом.
- Осуществили технический надзор на производством работ. (как ИП Шусталик Р.А.) Составили акты на скрытые работы на раму опорную металлическую.
- Заказали Электрофизические измерения на новую электрику.
- Заключили новые договора в Энергосбыте и Энергонадзоре.
- Заказали Обмерочную Ведомость в МГАпоГРиЗК.
- Согласовали Обмерочную ведомость МГАпоГРиЗК у Председателя ТС.
- Составили и согласовали с комиссией акты на ввод объекта в эксплуатацию.
- Подали "Пакет " документов в Службу Одно Окно исполкома Заводского района г. Минска на Вынесение Решения о регистрации Реконструкции квартир в БТИ.
- Зарегистрировали Решение исполкома в МГАпоГРиЗК и получили новые правоустанавливающие документы на одну квартиру с присвоением пониженного номера включая :
- - Новый Технический паспорт на квартиру
- - Новое Свидетельство о гос. регистрации МГАпоГРиЗК.
Информация
Год постройки
2024
Серия
М-111-90
Тип дома
панельный
Планировка
улучшенный проект
Район
Заводской район
Микрорайон
Ангарская
Этажность
19
Метро
Могилевская
№ дома
17А
Улица
ул. Ангарская
Город
г. Минск
Координаты
53.865706, 27.678522
Похожие проекты
Выполнить аналогичную реконструкцию , а также перепланировку можем и Вам. Достаточно оставить заявку "Заказать звонок" либо позвонить нам по телефонам +375 (29) 311-86-94 и +375 (33) 311-86-94
Адекватные цены, сертифицированные и опытные специалисты помогут выбрать Вам оптимальное решение.
МАПИД
Открытое акционерное общество «МАПИД» является ведущим предприятием строительной отрасли г. Минска и Республики Беларусь. На рынке строительства жилья предприятие успешно работает с 1961 года. За эти годы построено и введено в эксплуатацию более 25 м... Подробнее...Год основания: 1961
Адрес: 220036, г. Минск, ул.Р.Люксембург, 205
Телефоны: +375 (17) 209-87-00
Сайт: www.mapid.by
Почта: mail@mapid.by
































