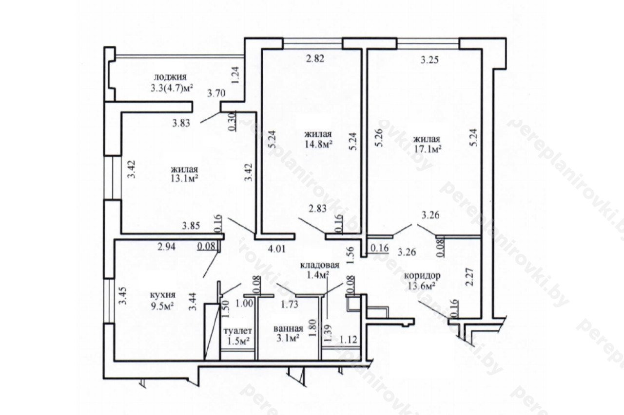
Выполнили объединение двух квартир по ул. Геологическая д. 61А г. Минск
Сегодня: 0, за все время: 242
г. Минск
Партизанский
19
M-111-90
Выполнили объединение квартир по ул. Геологическая д. 61А в Минске представляет собой следующие решения:
ПРОЕКТ №1
- Получили Разрешение Администрации Павртизанского района г. Минска на реконструкцию 2-х квартир с целью их объединения.
- Получили и согласовали в РЭС технические условия на электроснабжение двух квартир на 20 кВт.
- Разработали строй проект на реконструкцию (объединение двух квартир в одну). Разделы: АС, КМ (рама опорная металлическая между квартирами), ОВ, ВК, ПОС (проект организации строительства), ТЗ, ЭМ. (имеем аттестаты на проектирование 2-ой категории сложности, до 100 м. в высоту).
- Согласовали проект с Начальником управления архитектуры и строительства Администрации Партизанского района г. Минска, Председателем ТС, Энергосбыт, Энергонадзор.
- Защитили проект в ГП "Госстройэкспертиза по г. Минску", получили положительное Заключение.
- Выполнили стройработы, включая:
- - Проём между квартирами в несущей стене с усилением металлом (приложили Аттестаты Соответствия).
- - гидроизоляция во вновь образованном санузле (приложили Сертификаты качества)
- Осуществили технический надзор на производством работ. (как ИП Шусталик Р.А.) Составили акты на скрытые работы на раму опорную металлическую + гидроизоляцию.
- Заказали Электрофизические измерения на новую электрику.
- Заключили новые договора в Энергосбыте и Энергонадзоре.
- Заказали Обмерочную Ведомость в МГАпоГРиЗК.
- Согласовали Обмерочную ведомость МГАпоГРиЗК у Председателя ТС.
- Составили и согласовали с комиссией акты на ввод объекта в эксплуатацию.
- Подали "Пакет " документов в Службу Одно Окно исполкома Партизанского района г. Минска на Вынесение Решения о регистрации Реконструкции квартир в РУП "МГАпоГРиЗК"
- Зарегистрировали Решение исполкома в МГАпоГРиЗК и получили новые правоустанавливающие документы на одну квартиру с присвоением пониженного номера включая :
- - Новый Технический паспорт на квартиру
- - Новое Свидетельство о гос. регистрации МГАпоГРиЗК.
ПРОЕКТ №2
- Получили Разрешение на перепланировку и переустройство в Администрации Партизанского района (перенос кухни в жилую).
- Разработали проект перепланировки (переустройства). (разделы АС, ОПЗ, ОВ, ВК, ЭМ).
- Согласовали строительный проект с Управлением Архитектуры и строительства Администрации Партизанского района г. Минска, ЖЭУ Партизанского района г. Минска.
- Выполнили строй работы по устройству гидроизоляции пола с напуском на стены 300 мм во вновь образованном санузле. (приложили Свидетельство о тех. компетентности).
- Осуществили технический надзор за производстом работ от ИП Шусталик Р.А. Составили акты на скрытые работы. (Приложили Аттестат соответствия).
- Заказали Обмерочную Ведомость БРТИ.
- Создали комиссию на ввод в эксплуатацию и согласовали со всеми заинтересованными лицами.
- Подали "пакет" документов в Службу Одно Окно на вынесение Решения "о регистрации актов ввода в БРТИ"
- Зарегистрировали акты ввода + решение в БРТИ = получили новые правоустанавливающие документы, включая новый Технический паспорт + Свидетельство о государственной регистрации БРТИ.
Информация
Год постройки
2025
Серия
М-111-90
Тип дома
панельный
Планировка
новостройка
Район
Партизанский район
Микрорайон
Степянка
Этажность
19
№ дома
61А
Улица
ул. Геологическая
Город
г. Минск
Координаты
53.914870, 27.669818
Похожие проекты
Выполнить аналогичное объединение квартир , а также перевод жилого помещения в нежилое можем и Вам. Достаточно оставить заявку "Заказать звонок" либо позвонить нам по телефонам +375 (29) 311-86-94 и +375 (33) 311-86-94
Адекватные цены, сертифицированные и опытные специалисты помогут выбрать Вам оптимальное решение.
МАПИД
Открытое акционерное общество «МАПИД» является ведущим предприятием строительной отрасли г. Минска и Республики Беларусь. На рынке строительства жилья предприятие успешно работает с 1961 года. За эти годы построено и введено в эксплуатацию более 25 м... Подробнее...Год основания: 1961
Адрес: 220036, г. Минск, ул.Р.Люксембург, 205
Телефоны: +375 (17) 209-87-00
Сайт: www.mapid.by
Почта: mail@mapid.by










