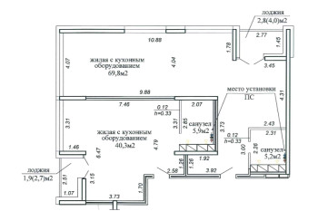
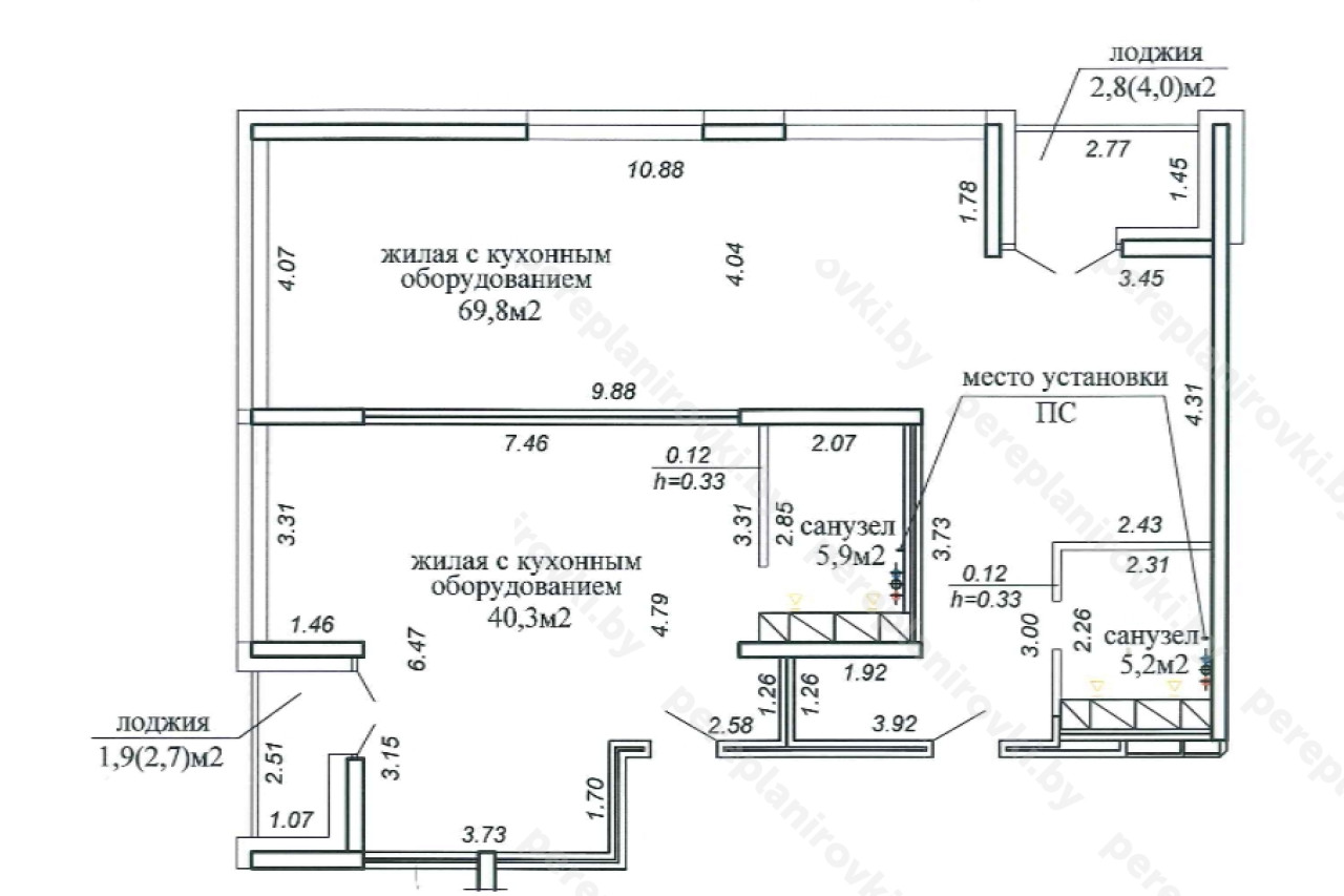
Выполнили объединение двух квартир по ул. Макаёнка д. 12Ж г. Минск
Сегодня: 0, за все время: 85
г. Минск
Первомайский
25
индвидуальный
Московская
8 минут пешком
Выполнили объединение квартир по ул. Макаёнка д. 12Ж в Минске представляет собой следующие решения:
- Получили Разрешение Администрации Первомайского района г. Минска на реконструкцию квартиры.
- Получили и согласовали в РЭС технические условия на электроснабжение двух квартир.
- Разработали строй проект на реконструкцию (объединение двух квартир в одну). Разделы: АС, ОВ, ВК, ПОС (проект организации строительства), ЭМ, ОПЗ, Задание на проект.
- Согласовали проект с Начальником управления архитектуры и строительства Администрации Первомайского района г. Минска, Председателем ТС, Энергосбыт, Энергонадзор.
- Защитили проект в ГП "Госстройэкспертиза по г. Минску", получили положительное Заключение.
- Выполнили строй работы по устройству гидроизоляции пола вновь образованных санузлов. Предоставили Сертификат качества.
- Осуществили технический надзор на производством работ. Составили акты на скрытые работы.
- Заказали Электрофизические измерения на новую электрику.
- Заключили новые договора в Энергосбыте и Энергонадзоре.
- Заказали Обмерочную Ведомость БТИ.
- Согласовали Обмерочную ведомость БТИ у Председателя ТС.
- Составили и согласовали с комиссией акты на ввод объекта в эксплуатацию.
- Подали "Пакет " документов в Службу Одно Окно исполкома Первомайского района г. Минска на Вынесение Решения о регистрации Реконструкции квартир в БТИ.
- Зарегистрировали Решение исполкома в БТИ и получили новые правоустанавливающие документы на одну квартиру с присвоением пониженного номера, включая :
- - Новый Технический паспорт на квартиру
- - Новое Свидетельство о гос. регистрации БТИ.
Информация
Год постройки
2020
Серия
индвидуальный
Тип дома
монолитный
Жилой комплекс
ЖК Парк Челюскинцев
Планировка
свободная
Район
Первомайский район
Микрорайон
Парниковая
Этажность
25
Метро
Московская
№ дома
12Ж
Улица
ул. Макаёнка
Город
г. Минск
Координаты
53.922984, 27.624237
Похожие проекты
Dana Holdings
«Дана Холдингз» («Dana Holdings») – международная строительная компания. В состав группы входят в том числе ИООО «Дана Астра», ИООО «ЗомексИнвестмент» и СООО «Белинте-Роба», которые осуществляют деятельность в Республике Беларусь. Компания осуществля... Подробнее...Год основания: 2007
Адрес: 220114, г. Минск, ул. П. Мстиславца, д.5, помещение 207, комната 2
Телефоны: +375 17 388-17-19
Сайт: https://bir.by
Почта: bir@bir.by



