Выполнили объединение двух квартир по ул. Маршала Лосика д. 50 г. Минск
Сегодня: 0, за все время: 149
г. Минск
Фрунзенский
10
М-464-У1М
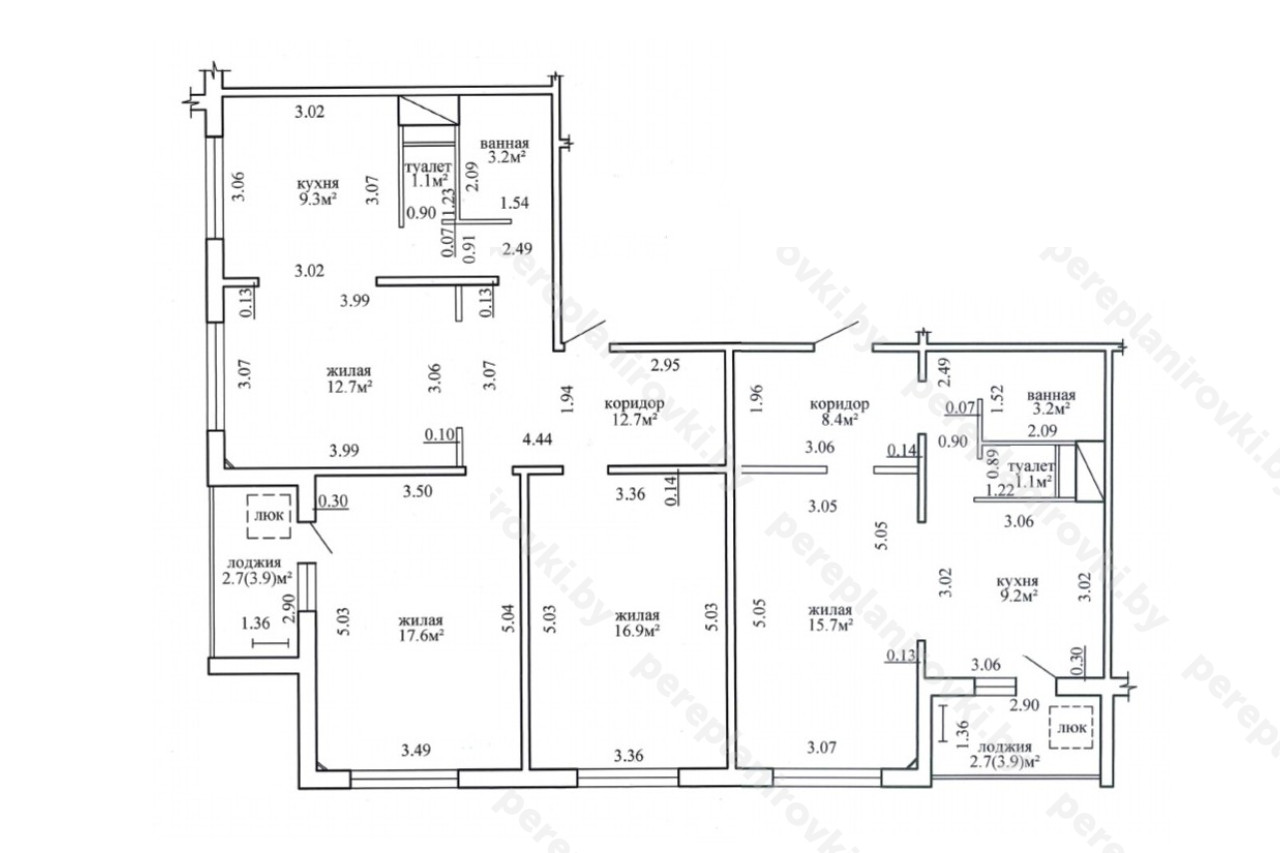
Выполнили объединение квартир по ул. Маршала Лосика д. 50 в Минске представляет собой следующие решения:
- Получили Разрешение Администрации Фрунзенского района г. Минска на реконструкцию 2-х квартир с целью их объединения.
- Получили и согласовали в РЭС технические условия на электроснабжение двух квартир на 20 кВт.
- Разработали строй проект на реконструкцию (объединение двух квартир в одну). Разделы: АС, КМ (рама опорная металлическая между квартирами), ОВ, ВК, ПОС (проект организации строительства), ТЗ, ЭМ. (имеем аттестаты на проектирование 2-ой категории сложности, до 100 м. в высоту).
- Согласовали проект с Начальником управления архитектуры и строительства Администрации Фрунзенского района г. Минска, Председателем ТС, Энергосбыт, Энергонадзор.
- Защитили проект в ГП "Госстройэкспертиза по г. Минску", получили положительное Заключение.
- Выполнили стройработы, включая:
- - Проём между квартирами в несущей стене с усилением металлом (приложили Аттестаты Соответствия).
- - гидроизоляция во вновь образованных санузлах (приложили Сертификаты качества)
- - замена радиаторов отопления (приложили Аттестаты Соответствия).
- Осуществили технический надзор на производством работ. (как ИП Шусталик Р.А.) Составили акты на скрытые работы на раму опорную металлическую + гидроизоляцию + замена радиаторов.
- Заказали Электрофизические измерения на новую электрику.
- Заключили новые договора в Энергосбыте и Энергонадзоре.
- Заказали Обмерочную Ведомость в МГАпоГРиЗК.
- Согласовали Обмерочную ведомость в РУП "МГАпоГРиЗК" у Председателя ТС.
- Составили и согласовали с комиссией акты на ввод объекта в эксплуатацию.
- Подали "Пакет " документов в Службу Одно Окно исполкома Фрунзенского района г. Минска на Вынесение Решения о регистрации Реконструкции квартир в РУП "МГАпоГРиЗК.
- Зарегистрировали Решение исполкома в РУП "МГАпоГРиЗК" и получили новые правоустанавливающие документы на одну квартиру с присвоением пониженного номера включая :
- - Новый Технический паспорт на квартиру
- - Новое Свидетельство о гос. регистрации РУП "МГАпоГРиЗК".
Информация
Год постройки
2025
Серия
М-464-У1М
Тип дома
панельный
Планировка
новостройка
Район
Фрунзенский район
Микрорайон
Сухарево
Этажность
10
№ дома
50
Улица
ул. Маршала Лосика
Город
г. Минск
Координаты
53.875501, 27.433120
Похожие проекты
Выполнить аналогичное объединение квартир , а также перевод жилого помещения в нежилое можем и Вам. Достаточно оставить заявку "Заказать звонок" либо позвонить нам по телефонам +375 (29) 311-86-94 и +375 (33) 311-86-94
Адекватные цены, сертифицированные и опытные специалисты помогут выбрать Вам оптимальное решение.








