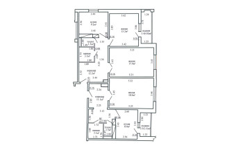
Выполнили реконструкцию квартиры по ул. Карвата д. 3В г. Минск
Сегодня: 0, за все время: 172
г. Минск
Партизанский
19
M-111-90
Выполнили реконструкцию квартиры по улице Карвата д. 3В г. Минск представляет собой следующие решения:
- Получили Решение Партизанского района на Реконструкцию (перенос кухни в жилую).
- Получили и согласовали в "Минские кабельные сети" Технические условия на электрику.
- Разработали строительный проект, включая разделы: АС,ОВ,ВК,ЭМ,КМ,ПОС,ОПЗ.
- Согласовали проект в Управлении архитектуры и строительства Администрации Партизанского района, в Товариществе Собственников, в филиале "Энергосбыт", в ГП "ГосЭнергоГазнадзор.
- Успешно защитили строительный проект в ДРУП "Госстройэкспертиза по г. Минску" без единого замечания.
- Выполнили строй работы по расширению проёма в несущей стеновой панели между жилой комнатой и коридором с усилением Рамой Опорной Металлической (РОМ1).
- Выполнили строй работы по гидроизоляции вновь образованного санузла (предоставили Сертификаты качества).
- Осуществили технический надзор за производством работ, составили акты на скрытые работы. (ИП Шусталик Р.А)
- Заказали Обмерочную Ведомость в РУП "МГАпоГРиЗК", согласовали её с председателем Товарищества Собственников.
- Созвали комиссию на ввод квартиры в эксплуатацию после реконструкции + составили и согласовали с комиссией акты на ввод в эксплуатацию.
- Получили решение Администрации Партизанского района на регистрацию актов ввода после перепланировки в РУП "МОАпоГРиЗК".
- Зарегистрировали акты ввода + Решение исполкома в РУП "МГАпоГРиЗК" – получили новые правоустанавливающие документы:
- Новый Технический паспорт.
- Новое свидетельство о государственной регистрации БТИ на имя собственника квартиры.
Информация
Год постройки
2024
Серия
М-111-90
Тип дома
панельный
Планировка
новостройка
Район
Партизанский район
Этажность
19
№ дома
3В
Улица
ул. Карвата
Город
г. Минск
Стиль
постмодернизм
Координаты
53.913481, 27.670276
Похожие проекты
Выполнить аналогичную реконструкцию , а также перепланировку можем и Вам. Достаточно оставить заявку "Заказать звонок" либо позвонить нам по телефонам +375 (29) 311-86-94 и +375 (33) 311-86-94
Адекватные цены, сертифицированные и опытные специалисты помогут выбрать Вам оптимальное решение.













