Выполнили согласование самовольной перепланировки квартиры по ул. Пилотная д. 18 д. Копище
Сегодня: 0, за все время: 137
д. Копище
Минский
5
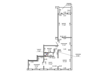
Выполнили перепланировку квартиры, а также реконструкцию квартиры с переносом кухни по улице Пилотная д. 18 в Копище представляет собой следующие решения:
- Получили Решение Минского района на Реконструкцию (перенос кухни в жилую).
- Получили и согласовали в "Минские кабельные сети" Технические условия на электрику.
- Разработали строительный проект, включая разделы: АС,ОВ,ВК,ЭМ,КМ,ПОС,ОПЗ.
- Согласовали проект в Управлении архитектуры и строительства Администрации Минского района, в Товариществе Собственников, в филиале "Энергосбыт", в ГП "ГосЭнергоГазнадзор.
- Успешно защитили строительный проект в ДРУП "Госстройэкспертиза по Минской области" без единого замечания.
- Выполнили строй работы по устройству проёма в несущей стеновой панели между жилыми комнатами с усилением Рамой Опорной Металлической (РОМ1).
- Выполнили строй работы по гидроизоляции вновь образованного санузла (предоставили Сертификаты качества).
- Осуществили технический надзор за производством работ, составили акты на скрытые работы. (ИП Шусталик Р.А)
- Заказали Обмерочную Ведомость в РУП "МОАпоГРиЗК", согласовали её с председателем Товарищества Собственников Антониной.
- Созвали комиссию на ввод квартиры в эксплуатацию после реконструкции + составили и согласовали с комиссией акты на ввод в эксплуатацию.
- Получили решение Администрации Минского района на регистрацию актов ввода после перепланировки в РУП "МОАпоГРиЗК".
- Зарегистрировали акты ввода + Решение исполкома в РУП "МОАпоГРиЗК" – получили новые правоустанавливающие документы:
- Новый Технический паспорт.
- Новое свидетельство о государственной регистрации БТИ на имя собственника квартиры.
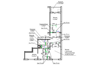
Выполнили согласование самоволки по улице Пилотная д. 18 в Копище представляет собой следующие решения:
- Выполнили конструкторские расчёты на усиление нового проёма между жилой комнатой и коридором шириной 1860 мм высотой под перекрытие.
- Выполнили строй работы по усилению рамой опорной металлической РОМ1 нового проёма между жилой комнатой и кухней. (применили раму "скрытого" исполнения: после отделки не видно).
- Убрали и вывезли строительный мусор на полигон "Тростенецкий" с предоставлением Заказчику Договора (нужен в исполком).
- Заказали обмерочную Ведомость в МОАпоГРиЗК.
- Согласовали Ведомость МОАпоГРиЗК у Председателя Правления Товарищества Собственников «Центральный парк-13» д. Копище.
- Изготовили Техническое Заключение о состоянии несущих конструкций, приложили фото рамы опорной металлической РОМ 1.
- Привлекли собственника квартиры к административной ответственности в виде штрафа в Администрации Минского района.
- Оплатили штраф в 0,5 Б.В.
- Составили и согласовали акт выполненных работ по самовольной перепланировке у Председателя Правления Товарищества Собственников «Центральный парк-13» д. Копище.
- Подали "пакет" документов в службу Одно Окно Администрации Минского района на вынесение решения о "регистрации самовольной перепланировки".
- Получили положительную Выписку из Решения администрации Минского района.
- Зарегистрировали Выписку из Решения исполкома в МОАпоГРиЗК и заказали новые правоустанавливающие документы.
- Получили в МОАпоГРиЗК новый Тех. паспорт на квартиру + Новое свидетельство о гос. Регистрации.
- Передали на офисе по ул. Тиражная 150-408 все готовые документы Заказчику.
Информация
Год постройки
2024
Квартал
Калейдоскоп
Тип дома
панельный
Жилой комплекс
ЖК Новая Боровая
Планировка
новостройка
Район
Минский район
Этажность
5
Сельсовет
Боровлянский с/с
№ дома
18
Улица
ул. Пилотная
Город
д. Копище
Стиль
постмодернизм
Координаты
53.960502, 27.653693
Похожие проекты
Адрес: 223053, Минский р-н, д. Боровая, 7
Телефоны: +375 29 300 00 00
Сайт: www.a-100development.by
Почта: a-100@a-100.by


















