Выполнили перевод нежилого помещения в жилое по ул. Каховская д. 28A г. Минск
Сегодня: 0, за все время: 71
г. Минск
Центральный
11
индвидуальный
Немига
26 минут пешком
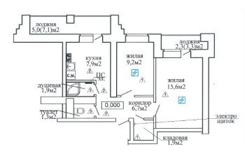
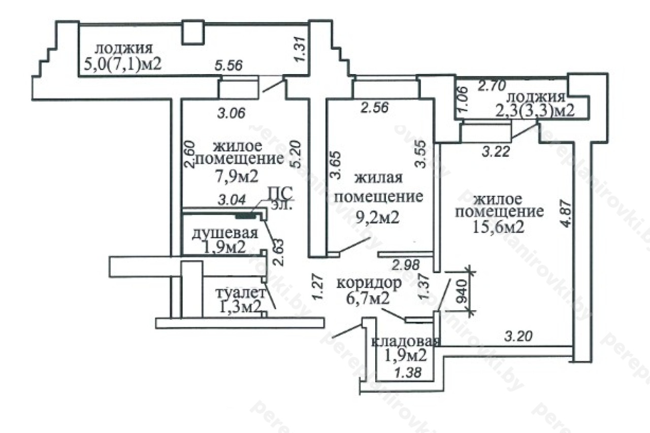
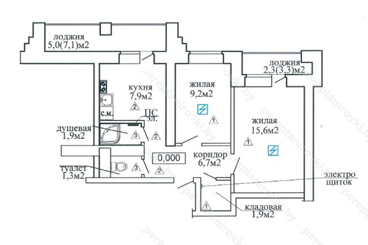
Перевод нежилого помещения в жилое по улице Каховская д. 28A представляет собой следующие решения:
- Получили Решение исполкома Центрального района г. Минска на реконструкцию (перевод из нежилого помещения в жилое) квартиры.
- Разработали проект реконструкции (перевод из нежилого помещения в жилое), включая разделы: АС, ОВ, ВК, ЭМ, ОПЗ.
- Разработали и получили Тех. условия на электричество ( устройство электро плиты, устройство щитка с автоматами в кладовой вновь образованной квартиры).
- Согласовали проект в Управлении архитектуры и строительства Администрации Центрального района г. Минска, в ЖЭУ, Энергосбыте, Энергонадзоре.
- Осуществили технический надзор за производством работ, составили акты на скрытые работы.
- Выполнили электро-физические измерения на новую электрику.
- Заключили новые договора с Энергосбыт, Энергонадзор.
- Заказали Обмерочную Ведомость БТИ, согласовали её в ЖЭУ Центрального района г. Минска.
- Созвали комиссию на ввод квартиры в эксплуатацию после перепланировки + составили и согласовали с комиссией акты на ввод в эксплуатацию.
- Получили Решение исполкома Центрального района г. Минска на регистрацию актов ввода после перепланировки в БТИ.
- Зарегистрировали акты ввода + Решение исполкома в БТИ – получили новые правоустанавливающие документы
- Новый Технический паспорт.
- Новое Свидетельство о государственной регистрации БТИ на имя собственника квартиры.
Информация
Год постройки
1994
Серия
индвидуальный
Тип дома
кирпичный
Планировка
стандартный проект
Район
Центральный район
Микрорайон
Каховская
Этажность
11
Метро
Немига
№ дома
28А
Улица
ул. Каховская
Город
г. Минск
Стиль
капиталистический романтизм
Координаты
53.928196, 27.549866
Похожие проекты



