Выполнили проект перепланировки помещения по пр-т Дзержинского д. 69 к. 2 г. Минск
Сегодня: 0, за все время: 46
г. Минск
Московский
5
индвидуальный
Петровщина
2 минут пешком
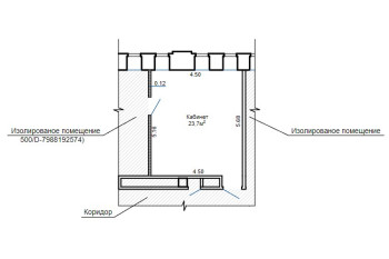
Выполнили проект перепланировки помещения по пр-т Дзержинского д. 69 к. 2 в Минске представляет собой следующие решения:
- Получили Разрешение Администрации Московского района г. Минска на модернизацию административного помещения.
- Разработали архитектурный проект перепланировки (Раздел АС -Архитектурно-строительные решения).
- Согласовали Архитектурно-строительный проект с Начальником управления архитектуры и строительства Администрации Московского района г. г. Минска, а также Председателем ТС.
- Осуществили технический надзор, составили акты на скрытые работы.
- Заказали обмерочную Ведомость БТИ Московского района.
- Составили комиссию на ввод в эксплуатацию + согласовали акты ввода с комиссией.
- Получили Решение исполкома Московского района на регистрацию изменений после перепланировки в БТИ Московского района.
- Зарегистрировали в БТИ Решение исполкома, получили новые правоустанавливающие документы - новый технический паспорт + Свидетельство о гос. Регистрации.
Информация
Год постройки
2006
Серия
индвидуальный
Район
Московский район
Микрорайон
Юго-Запад
Метро
Петровщина
№ дома
69/2
Улица
пр-т. Дзержинского
Город
г. Минск
Стиль
постмодернизм
Координаты
53.864703, 27.488079
Похожие проекты


