Выполнили согласование самовольной перепланировки квартиры по ул. Мстиславца д. 20 г. Минск
Сегодня: 0, за все время: 127
г. Минск
Первомайский
10
индвидуальный
Восток
3 минут пешком
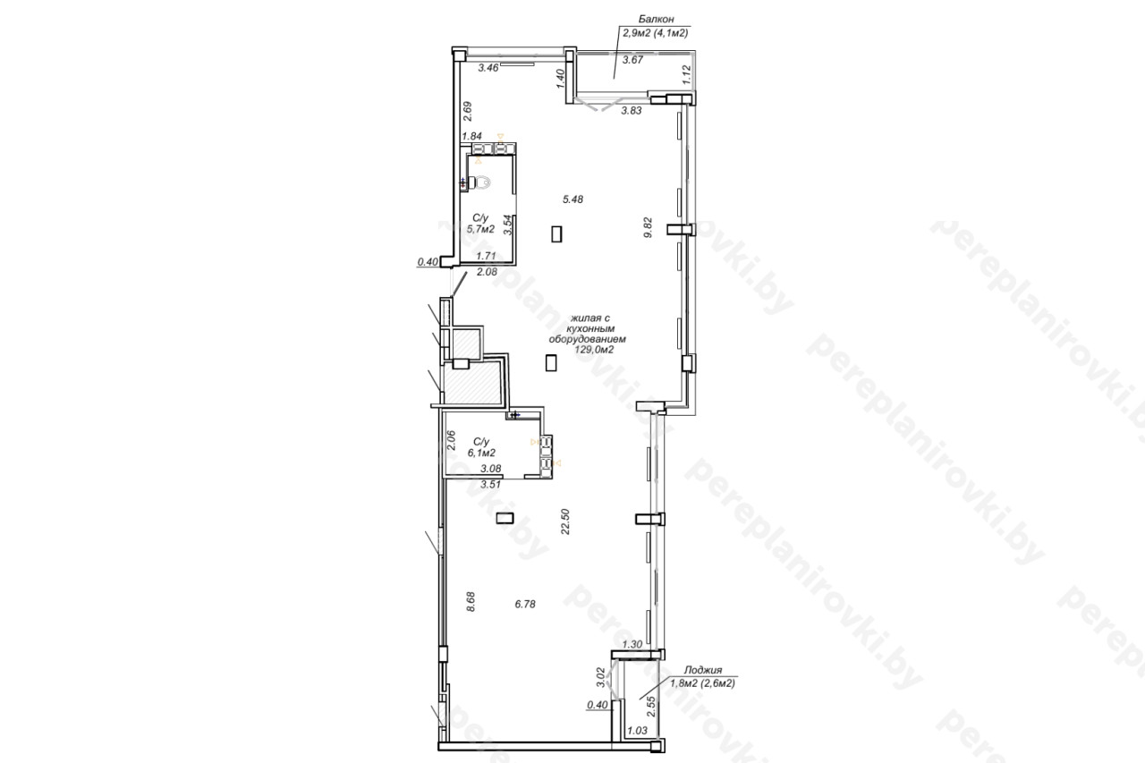
Проект с согласованием реконструкции: разделение квартиры на две по улице Петра Мстиславца д. 20 в Минске представляет собой следующие решения:
- Получили Разрешение Администрации Первомайского района г. Минска на реконструкцию квартиры (разделение на 2 квартиры).
- Дополнительно получили письменное согласие соседей по общему коридору (тамбуру), так как затрагиваются их интересы юридически.
- Получили технические условия (2 шт) на электроснабжение 2-х квартир и согласовали их в РЭС.
- Разработали строй проект на реконструкцию (разъединение одной квартиры на две). Разделы: АС, ОВ, ВК, ПОС (проект организации строительства), ЭМ, ОПЗ, Задание на проектирование.
- Согласовали проект с Начальником управления архитектуры и строительства Администрации Первомайского района г. Минска, Председателем ТС, Энергосбыт, Энергонадзор.
- Защитили проект в ГП "Госстройэкспертиза по г. Минску", получили положительное Заключение.
- Выполнили стройработы.
- Осуществили технический надзор на производством работ. Составили акты на скрытые работы.
- Заказали Электрофизические измерения на новую электрику.
- Заключили новые договора в Энергосбыте и Энергонадзоре.
- Заказали Обмерочную Ведомость БТИ.
- Согласовали Обмерочную ведомость БТИ у Председателя ТС.
- Составили и согласовали с комиссией акты на ввод объекта в эксплуатацию.
- Подали "Пакет " документов в Службу Одно Окно исполкома Первомайского района г. Минска на Вынесение Решения о регистрации Реконструкции квартир в БТИ.
- Зарегистрировали Решение исполкома в БТИ и получили новые правоустанавливающие документы на две квартиры с присвоением двух номеров:
- - Новый Технический паспорт на квартиру
- - Новое Свидетельство о гос. регистрации БТИ.
Информация
Год постройки
2013
Серия
индвидуальный
Тип дома
монолитный
Жилой комплекс
Маяк Минска
Планировка
свободная
Район
Первомайский район
Микрорайон
Парниковая
Метро
Восток
№ дома
20
Улица
ул. Петра Мстиславца
Город
г. Минск
Координаты
53.932442, 27.651330
Дом
Шагал


