Выполнили реконструкцию квартиры по ул. Богдановича д. 144 г. Минск
Сегодня: 0, за все время: 132
г. Минск
Фрунзенский
26
индвидуальный
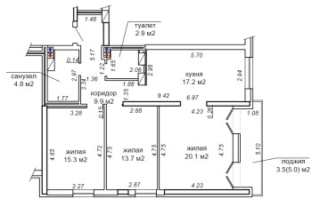
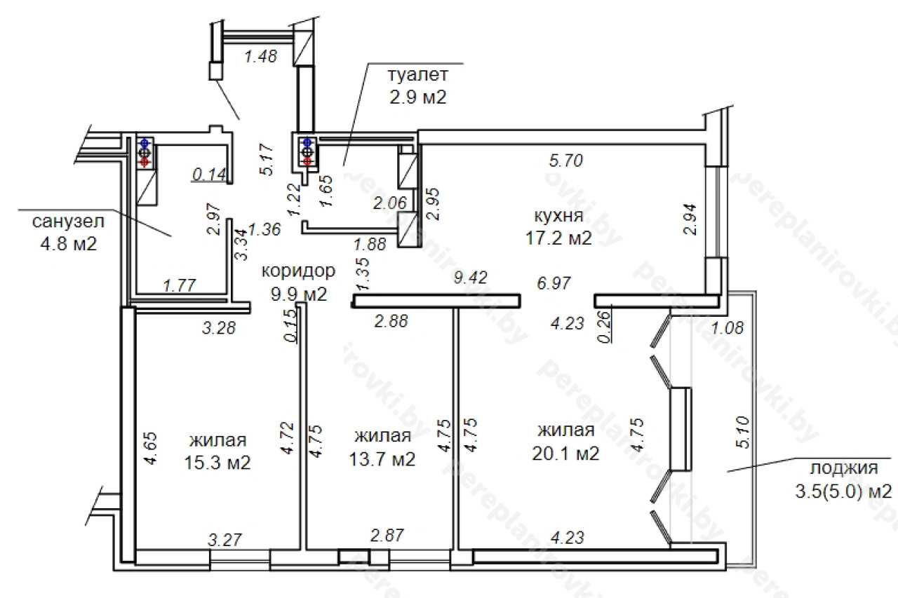
Выполнили перепланировку квартиры, а также реконструкцию квартиры с переносом кухни по улице Богдановича д. 144 в Минске представляет собой следующие решения:
- Получили Решение исполкома на Реконструкцию (перенос кухни в жилую).
- Разработали строительный проект, включая разделы: АС,ОВ,ВК,ЭМ,ОПЗ.
- Согласовали проект в Управлении архитектуры и строительства Администрации Советского района г. Минска, ТС, Энергосбыт, Энергонадзор.
- Осуществили технический надзор за производством работ, составили акты на скрытые работы.
- Заказали Обмерочную Ведомость БТИ, согласовали её с ЖЭУ.
- Созвали комиссию на ввод квартиры в эксплуатацию после реконструкции + составили и согласовали с комиссией акты на ввод в эксплуатацию.
- Получили решение исполкома на регистрацию актов ввода после перепланировки в БТИ.
- Зарегистрировали акты ввода + Решение исполкома в БТИ – получили новые правоустанавливающие документы
- Новый Технический паспорт.
- Новое свидетельство о государственной регистрации БТИ на имя собственника квартиры.
Информация
Год постройки
2022
Серия
индвидуальный
Тип дома
монолитный
Планировка
новостройка
Район
Фрунзенский район
Микрорайон
Кунцевщина
Этажность
12
№ дома
144
Улица
ул. Богдановича
Город
г. Минск
Координаты
53.939513, 27.586337
Dana Holdings
«Дана Холдингз» («Dana Holdings») – международная строительная компания. В состав группы входят в том числе ИООО «Дана Астра», ИООО «ЗомексИнвестмент» и СООО «Белинте-Роба», которые осуществляют деятельность в Республике Беларусь. Компания осуществля... Подробнее...Год основания: 2007
Адрес: 220114, г. Минск, ул. П. Мстиславца, д.5, помещение 207, комната 2
Телефоны: +375 17 388-17-19
Сайт: https://bir.by
Почта: bir@bir.by







